EasyManua.ls Logo

Windhager BioWIN - Installation Sequence

Windhager BioWIN
44 pages
Print Icon
To Next Page IconTo Next Page
To Next Page IconTo Next Page
To Previous Page IconTo Previous Page
To Previous Page IconTo Previous Page
Loading...
16
2. For the Installer
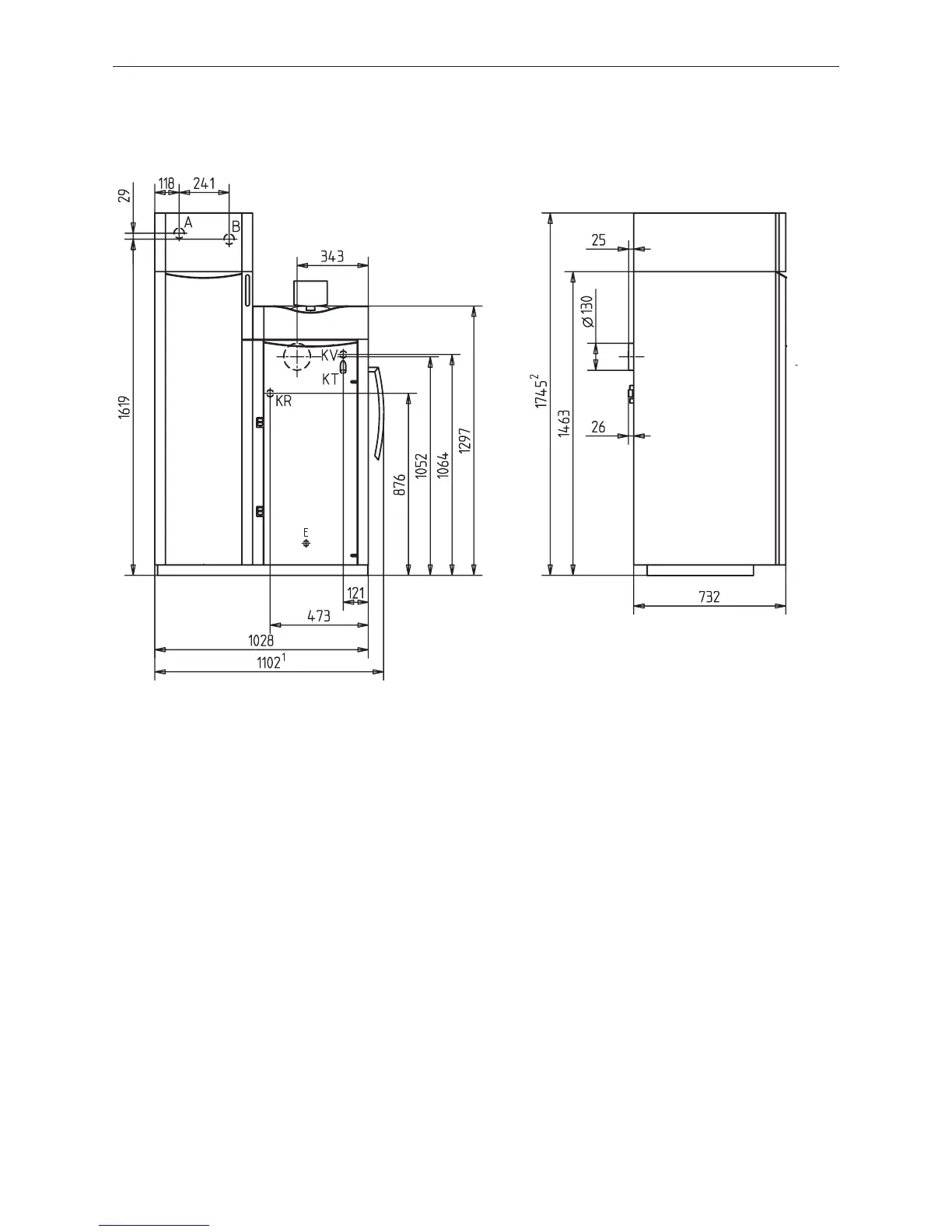
2.6 Dimensional sketches
All dimensions in mm:
Fig. 36 BioWIN pellet boiler 100–260 – Front view
KV ........Boiler feed (1” tube)
KR ........ Boiler return (1” tube)
E ..........Discharge
A ..........Pellet feed (50 mm Ø pipe)
B ..........Reverse air flow (50 mm Ø pipe)
KT ........Boiler temperature sensor
Z ..........Intake air for operating independently of the room air
1
Premium/Klassik types only
2
Exklusiv/Premium types only
Fig. 37 BioWIN pellet boiler 100–260 – Side view
2.7 Installation sequence
a) Transport boiler to installation site and remove crate see – section 2.8.
b) Fit reserve supply container cover (BioWIN Klassik only) – see section 2.9.
c) Fit cleaning lever (BioWIN Klassik and Premium only) – see section 2.10.
d) Install the exhaust pipe – see 2.11.
e) Fit cleaning tools – see section 2.12.
f) Fit feed unit on reserve supply container (BioWIN Premium and Exklusiv only) – see section 2.13.
g) Initial start-up and operating instructions – see section 2.14.

Table of Contents