EasyManua.ls Logo

Windhager BioWIN - Page 6

Windhager BioWIN
44 pages
Print Icon
To Next Page IconTo Next Page
To Next Page IconTo Next Page
To Previous Page IconTo Previous Page
To Previous Page IconTo Previous Page
Loading...
6
1. Important initial information for the Technician
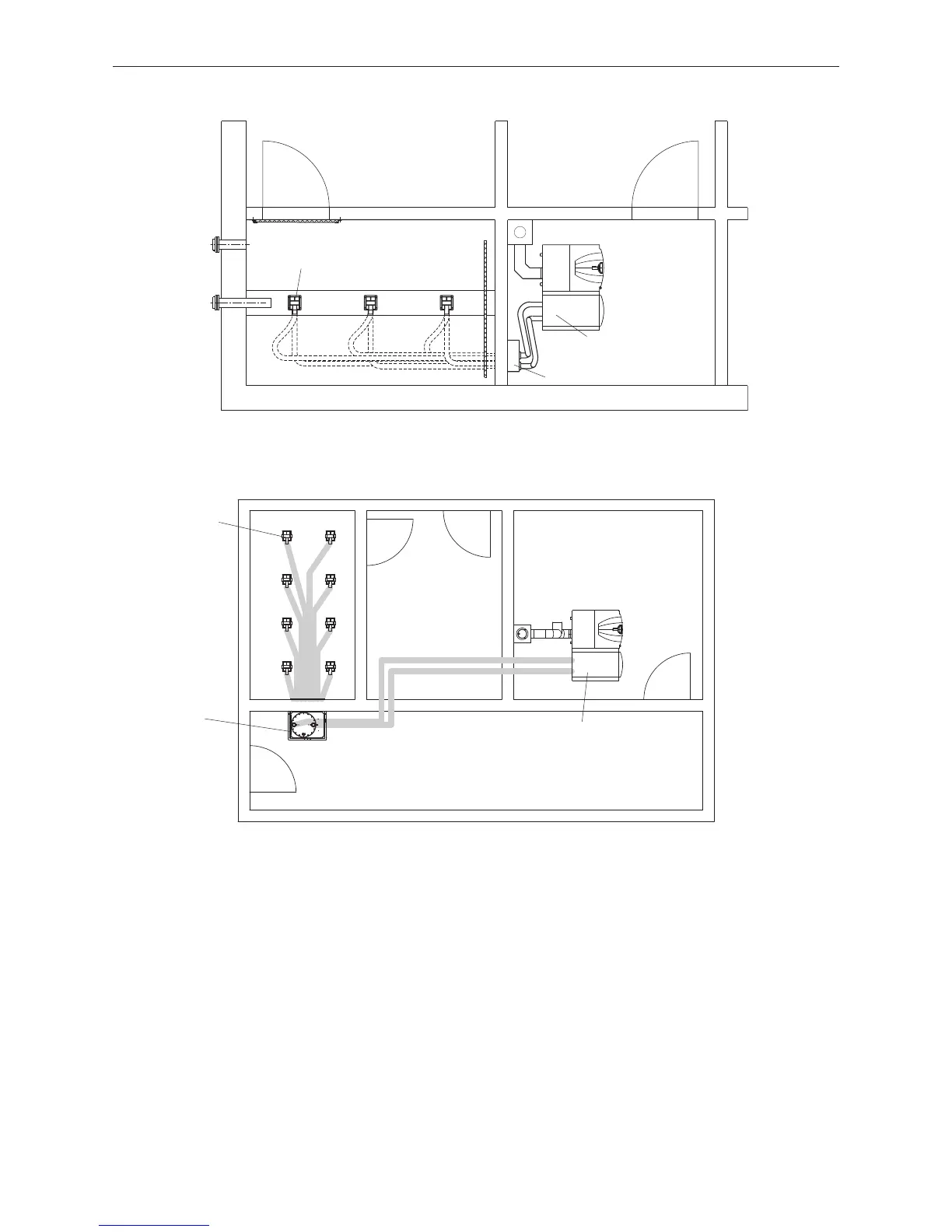
Fig. 2 Storage room, Boiler room – view from above
Fig. 3 Storage room, Boiler room – view from above
Furthest away probe
changeover unit
Storage room
Suction turbine
BioWIN 100–260
Boiler room
Furthest away probe
changeover unit
Storage room
Suction turbine
BioWIN 100–260 Boiler room
BioWIN 100–260 (3 probe):
BioWIN 100–260 (8 probe):

Table of Contents

Related product manuals