EasyManua.ls Logo

WinGD WARTSILA RT-flex58T-E - Page 100

WinGD WARTSILA RT-flex58T-E
504 pages
Print Icon
To Next Page IconTo Next Page
To Next Page IconTo Next Page
To Previous Page IconTo Previous Page
To Previous Page IconTo Previous Page
Loading...
Maintenance11322/A1
RT-flex58T-E
Winterthur Gas & Diesel Ltd.
8/ 14
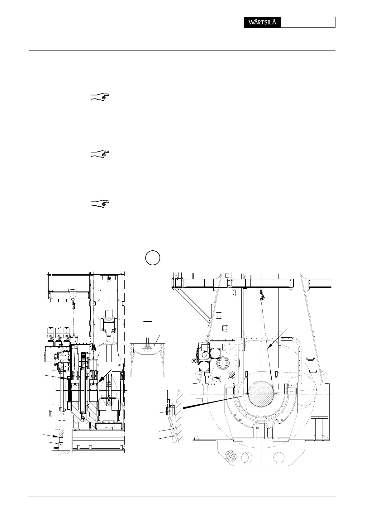
4.4 Turning out main bearing shell No. 1
D Crankshaft lifted up by approx. 0.2 mm (see paragraphs 5.1 and 5.2).
Remark: Turning-out device 94118 must only be fitted to bearing shell No. 1
instead of turning-out device 94118A, which is provided for all other bearing shells.
Fasten manual ratchet ’H1’ with rope 94120B to gallery support.
Fasten turning-out device 94118 to bearing shell 3 using screwdriver 94129,
lead ropes ’a’ along the lateral edges of the bearing shell 3 to the other side
and connect them with lifting yoke 94119.
Remark: By means of a wire attached to the ropes they can be pulled below the
bearing journal to the other side.
Slowly turn out bearing shell using manual ratchet ’H1’ from the bearing girder
until both ends of the bearing shell are free (no meshing), check!
Remove lifting yoke.
Remark: If a bearing shell jams during turning out, lifting yoke 94119 must be fas-
tened to the two opposite wire ropes of turning-out device 94118. Subsequently
draw the bearing shell back to the initial position until the bearing shell is freed.
K
II
94119
94120B
H1
94118
H1
WCH01015
II
3
a
PR
PR
94959
Removal and Fitting of a Main Bearing
2013 / V2

Table of Contents

Related product manuals