EasyManua.ls Logo

Worcester 29CDi GC 47-406-34

Worcester 29CDi GC 47-406-34
56 pages
To Next Page IconTo Next Page
To Next Page IconTo Next Page
To Previous Page IconTo Previous Page
To Previous Page IconTo Previous Page
Loading...
INSTALLATION
6 720 803 599 (2012/06) 29
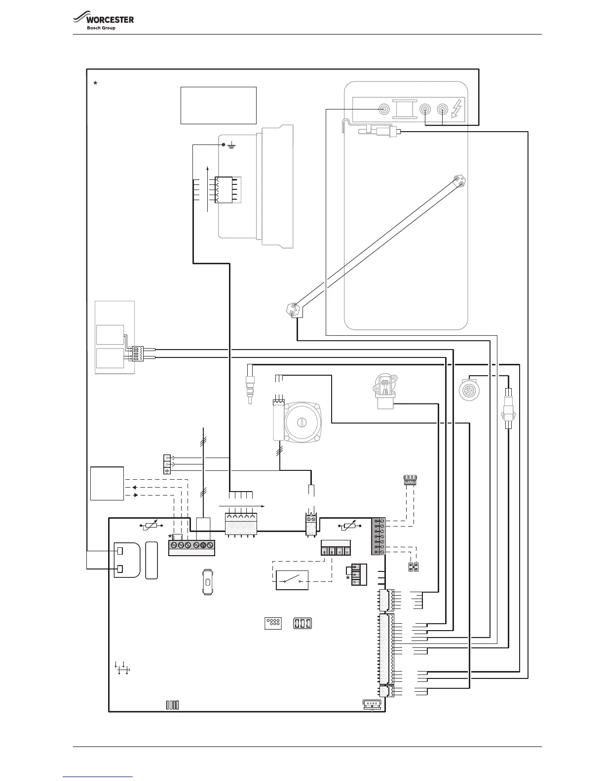
4.9 POSITION OF WIRED COMPONENTS
FSFR NP LP
L
N
S
N
L
SLR
ST8
ST9
ST17
ST18
ST5 ST4
ST10
Earth
MAINS
SUPPLY
PUMP
SUPPLY
PUMP
CONTROL
SPARK
TRANSFORMER
230V~
FLAME SENSE
ELECTRODE
SPARK
ELECTRODES
FLOW NTC
OVERHEAT
STAT
DIVERTER
VALVE
FLUE
OVERHEAT
STAT
ST1
DIAGNOSTIC
INTERFACE
CODE PLUG
Fuse F1, slow
2.5 A, AC 230 V
ST6
DHW TEMPERATURE
CONTROL
CH TEMPERATURE
CONTROL
Red
Neutral Supply
230V
EXTERNAL
CONTROLS
OPTION
WORCESTER 24V CONTROLS
OPTION, PLUG IN POINT
(under blanking cover on fascia)
EMS BUS contacts
(for FX controls)
Outside sensor
(FW 100)
Live Supply
Live Return
Neutral
Live
Orange
Blue
Yellow
Green
Black
Colour sequence †
Blue
Black
Yellow
Grey
Orange
Orange
Orange
Orange
Grey
White
Black
Red
Red
7
8
9
B
B
4
2
1
A
F
Purple
White
Black
FAN
Colour sequence †
EXTERNAL
FROST STAT
(OPTIONAL)
Wall plate contacts
(for FX controls)
BB
PRE WIRED LINK
FLOW
TURBINE
GAS
VALVE
SAFETY
SOLENOID
SAFETY
SOLENOID
DHW
SENSOR
PUMP
Purple
White
Black
SI1
† Fan wiring:
Live = purple
Neutral = brown
6720647361-19.2Wo

Table of Contents

Related product manuals