EasyManua.ls Logo

Worcester Greenstar 25Si Compact - Installation (Continued); 5.7.2 New Complete System Installations

Worcester Greenstar 25Si Compact
76 pages
Print Icon
To Next Page IconTo Next Page
To Next Page IconTo Next Page
To Previous Page IconTo Previous Page
To Previous Page IconTo Previous Page
Loading...
INSTALLATION
Greenstar Si Compact
ErP
- 6 720 813 278 (2015/07) 31
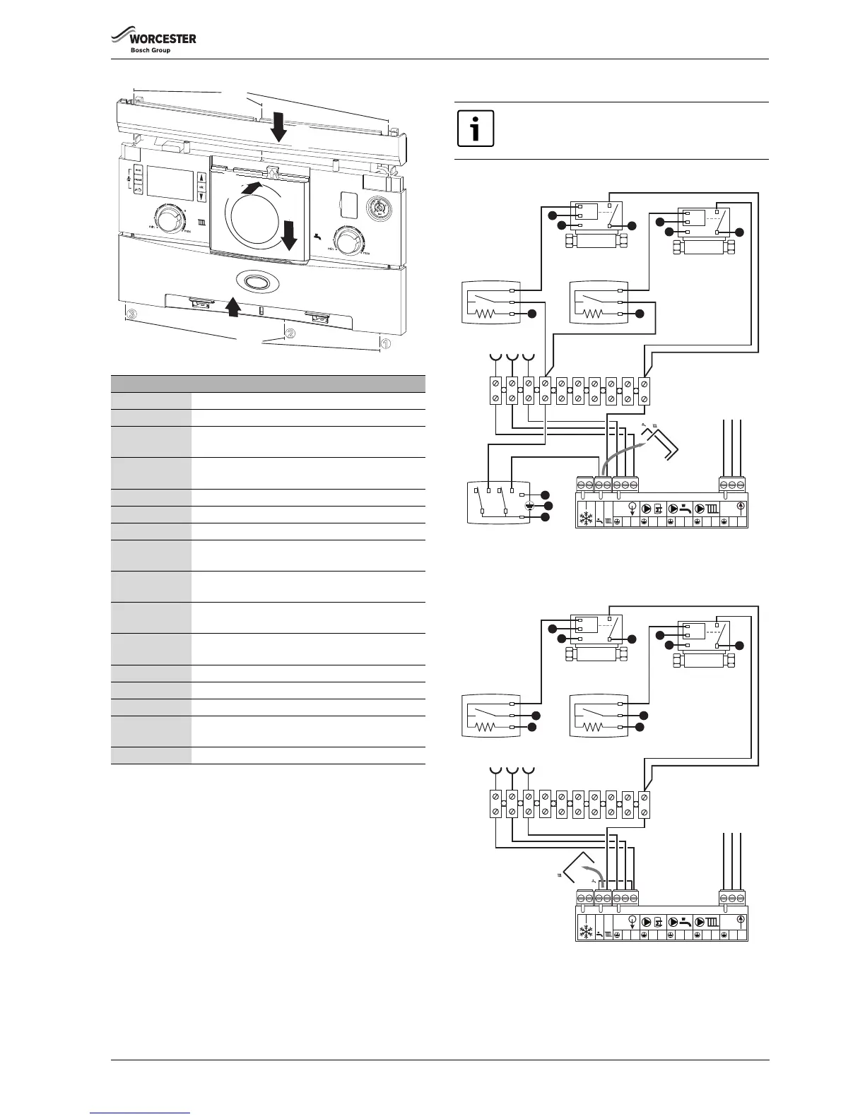
Fig. 45 Fitting the Programmer/Timer
5.7.2 NEW COMPLETE SYSTEM INSTALLATIONS
If a new complete heating system is installed in a new build property or it
is a first time installation in an existing property, the heating systems
must conform to current building regulations Part L1a.
The exception to this are single storey, open plan dwellings where the
living area is more than 70% of the total usable floor area. Then this type
of dwelling can be controlled as one zone.
An alternative would be individual electronically controlled TRVs.
For dwellings with a floor area over 150m
2
, separate time and
temperature control for each zone is required. All radiators must have
TRVs fitted in all rooms except bathrooms and rooms with thermostats.
THIRD PARTY EXTERNAL TIMER AND TWO ZONES
Fig. 46 Two room thermostats, one external timer
INTEGRATED TIMER AND TWO ZONES
Fig. 47 Two room thermostats, one integrated timer
Part number Description
7 716 192 036 MT10 mechanical timer
7 716 192 037 MT10RF mechanical thermostat
7 716 192 038 DT20 twin channel digital timer (preheat time
control available)
7 716 192 054 DT20RF digital RF thermostat with twin channel
programmer (preheat time control available)
7 716 192 052 DT10RF digistat (preheat time control available)
7 716 192 053 DT10RF optimiser (preheat time control available)
7 716 192 065 FR10 intelligent room thermostat
7 716 192 066 FR110 programmable room thermostat (preheat
time control available)
7 716 192 067 FW100 weather compensation controller (preheat
time control available)
7 733 600 001 Comfort I RF (RF thermostat with twin channel
programmer, preheat time control available)
7 733 600 002 Comfort II RF (programmable room thermostat,
preheat time control available)
7 733 600 003 Comfort (twin channel programmer)
7 733 600 039 Comfort wall plate kit
7 738 110 058 Sense I intelligent room thermostat
7 738 111 064 Sense II weather compensation controller (preheat
time control available)
7 716 192 072 Worcester Wave (thermostat)
Table 23 Control accessories
6720646608-1171Wo
5.
8.
7.
6.
3.
4.
Pre-wired CH & DHW links
Remove link when connecting external CH control
Remove link when connecting external DHW control
230V
MAINS
SUPPLY
NE L
LNE4
56
78
910
E
N
L
L
N
230V
IN
230V
OUT
FR FS LR LR
LN
L
N
LN
LN
LN
6720646608-36.2Wo
N
Zone 1
Room Thermostat
N
Zone 2
Room Thermostat
M
~
L
N
E
Zone 1
Zone Valve
M
~
L
N
E
Zone 2
Zone Valve
E
CH ON
PreHeat
Programmer
230V
MAINS
SUPPLY
Plug in
Worcester timer.
(see timer operating
instructions for
installation)
NE L
LNE4
56
78
910
E
N
L
230V
IN
230V
OUT
FR FS LR LR
LN
L
N
LN
LN
LN
6720646608-37.2Wo
N
Zone 1
Room Thermostat
N
Zone 2
Room Thermostat
M
~
L
N
E
Zone 1
Zone Valve
M
~
L
N
E
Zone 2
Zone Valve
L
L

Table of Contents

Related product manuals