EasyManua.ls Logo

Worcester Greenstar Danesmoor Utility Regular ErP 25/32

Worcester Greenstar Danesmoor Utility Regular ErP 25/32
56 pages
To Next Page IconTo Next Page
To Next Page IconTo Next Page
To Previous Page IconTo Previous Page
To Previous Page IconTo Previous Page
Loading...
Installation
Greenstar Danesmoor Utility
ErP
and Utility System
ErP
- 6 720 813 286 (2014/09)24
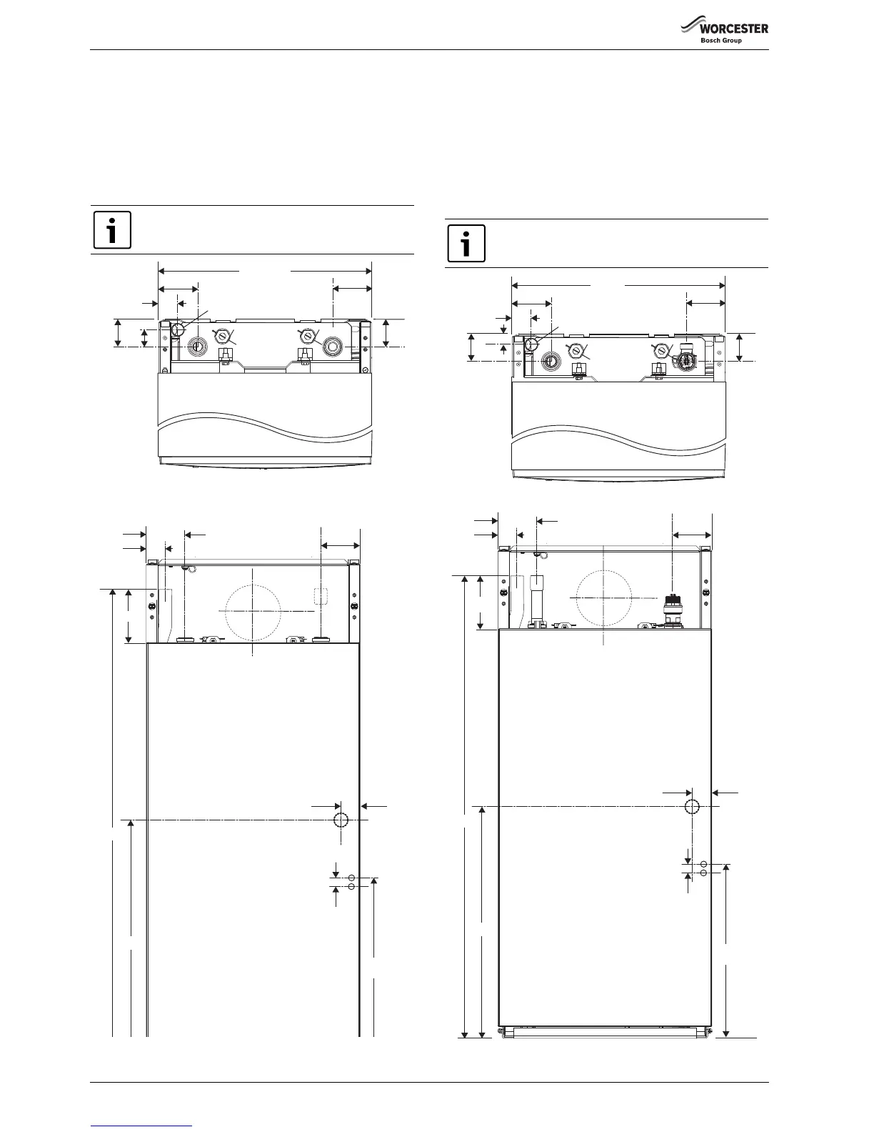
Pipework connections - Regular
A - Flow connections (optional combined feed and vent) 1” BSP
B - Return connections 22mmØ copper on 12/18, 18/25 models and
28mmØ copper on 25/32 models
C - Condensate outlet 21.5mm Ø
D - Flue outlet
E - Oil pipe optional centres
F - Optional oil line return line connection
Fig. 29 Top view of Regular boiler pipe connections
Fig. 30 Front view of Regular boiler pipe connections
Pipework connections - System
A - Flow connections 12/18 & 18/25 - 22mm Ø , 25/32 - 28mm Ø
B - Return connections 22mmØ copper on 12/18, 18/25 models and
28mmØ copper on 25/32 models
C - Condensate outlet 21.5mm Ø
D - Flue outlet
E- Oil pipe optional centres
F - Optional oil line return line connection
PRV - 15mm Ø
Fig. 31 Top view of System boiler pipe connections
Fig. 32 Front view of System boiler pipe connections
For servicing purposes, keep condensate discharge pipe
away from components and pipework connections.
35
69
48
19
67
48
B
370
6720808218-100.1Wo
A
All dimensions are in millimetres
A
TOP VIEW
69
35
67
A
D
BA
C
21.5
100
412
FRONT VIEW
825
6720808218-101.1Wo
All dimensions are in millimetres
E
F
321
40
For servicing purposes, keep condensate and pressure
relief discharge pipes away from components and
pipework connections.
35
69
48
19
67
48
B
All dimensions in are millimetres
6720808218-98.1Wo
370
TOP VIEW
PRVA
69
35
67
21.5
100
A
C
D
BPRV
FRONT VIEW
825
6720808218-99.1Wo
All dimensions in are millimetres
412
E
F
321
40

Table of Contents

Related product manuals