EasyManua.ls Logo

Xantrex Freedom XC PRO 3000

Xantrex Freedom XC PRO 3000
114 pages
To Next Page IconTo Next Page
To Next Page IconTo Next Page
To Previous Page IconTo Previous Page
To Previous Page IconTo Previous Page
Loading...
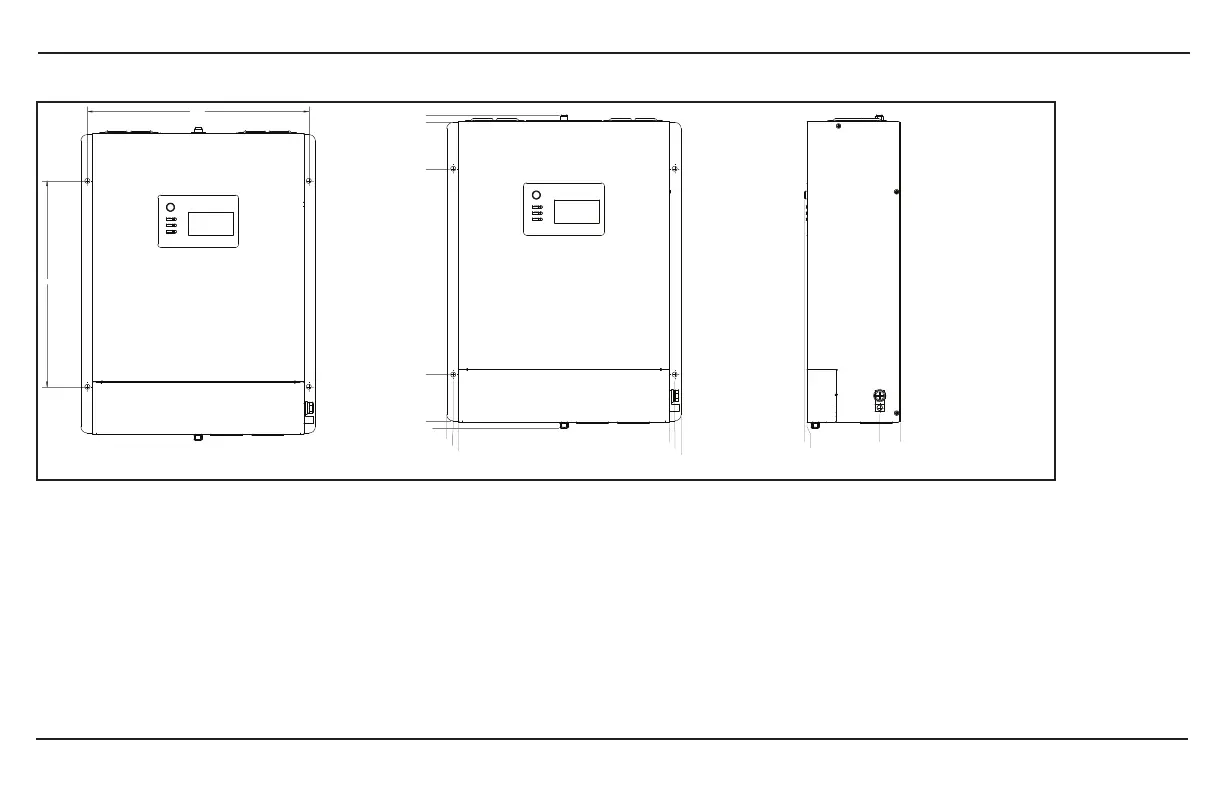
Physical Specifications
975-0799-01-01 91
267
288
9
15
290
296
305
0
9
69
336
396
406
0
27
122
125
Table 17Product dimensions

Table of Contents

Related product manuals