EasyManua.ls Logo

YASKAWA GA500 series - Finless-Type Drive

YASKAWA GA500 series
794 pages
To Next Page IconTo Next Page
To Next Page IconTo Next Page
To Previous Page IconTo Previous Page
To Previous Page IconTo Previous Page
Loading...
Specifications
10
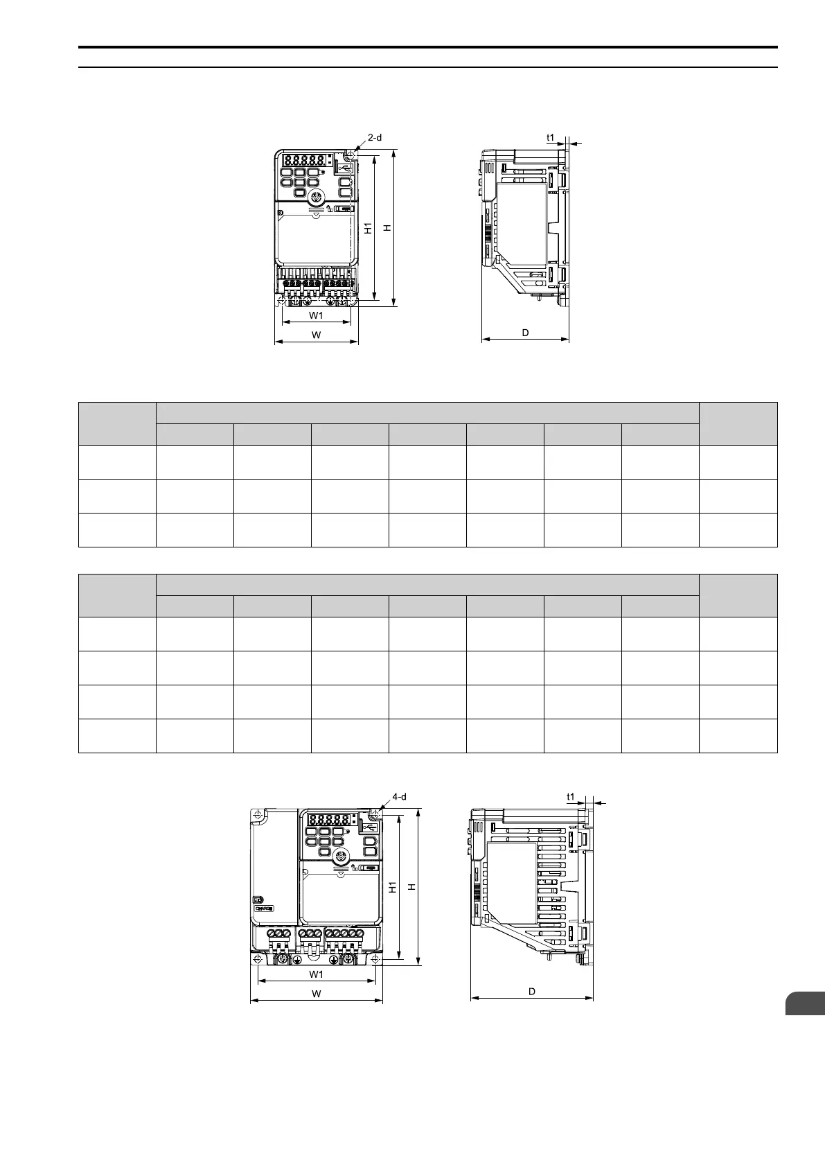
10.8 Drive Exterior and Mounting Dimensions
YASKAWA SIEPC71061753C GA500 Technical Manual 349
Finless-Type Drive
B001 to B004, 2001 to 2006
Figure 10.5 Exterior and Mounting Dimensions
Table 10.36 Single-Phase 200 V Class (Finless-Type Drive)
Model
Dimensions mm (in)
Est. Weight
kg (lb)
W H D W1 H1 t1 d
B001
68
(2.68)
128
(5.04)
71
(2.80)
56
(2.20)
118
(4.65)
3
(0.12)
M5
0.6
(1.32)
B002
68
(2.68)
128
(5.04)
71
(2.80)
56
(2.20)
118
(4.65)
3
(0.12)
M5
0.6
(1.32)
B004
68
(2.68)
128
(5.04)
81
(3.19)
56
(2.20)
118
(4.65)
3
(0.12)
M5
0.6
(1.32)
Table 10.37 Three-Phase 200 V Class (Finless-Type Drive)
Model
Dimensions mm (in)
Est. Weight
kg (lb)
W H D W1 H1 t1 d
2001
68
(2.68)
128
(5.04)
71
(2.80)
56
(2.20)
118
(4.65)
3
(0.12)
M5
0.6
(1.32)
2002
68
(2.68)
128
(5.04)
71
(2.80)
56
(2.20)
118
(4.65)
3
(0.12)
M5
0.6
(1.32)
2004
68
(2.68)
128
(5.04)
71
(2.80)
56
(2.20)
118
(4.65)
3
(0.12)
M5
0.6
(1.32)
2006
68
(2.68)
128
(5.04)
71
(2.80)
56
(2.20)
118
(4.65)
3
(0.12)
M5
0.6
(1.32)
B006 to B012, 2008 to 2021, 4001 to 4012
Figure 10.6 Exterior and Mounting Dimensions

Table of Contents

Other manuals for YASKAWA GA500 series

Related product manuals