EasyManua.ls Logo

YASKAWA SGM series - Page 47

YASKAWA SGM series
429 pages
To Next Page IconTo Next Page
To Next Page IconTo Next Page
To Previous Page IconTo Previous Page
To Previous Page IconTo Previous Page
Loading...
2.3 Connection and Wiring
35
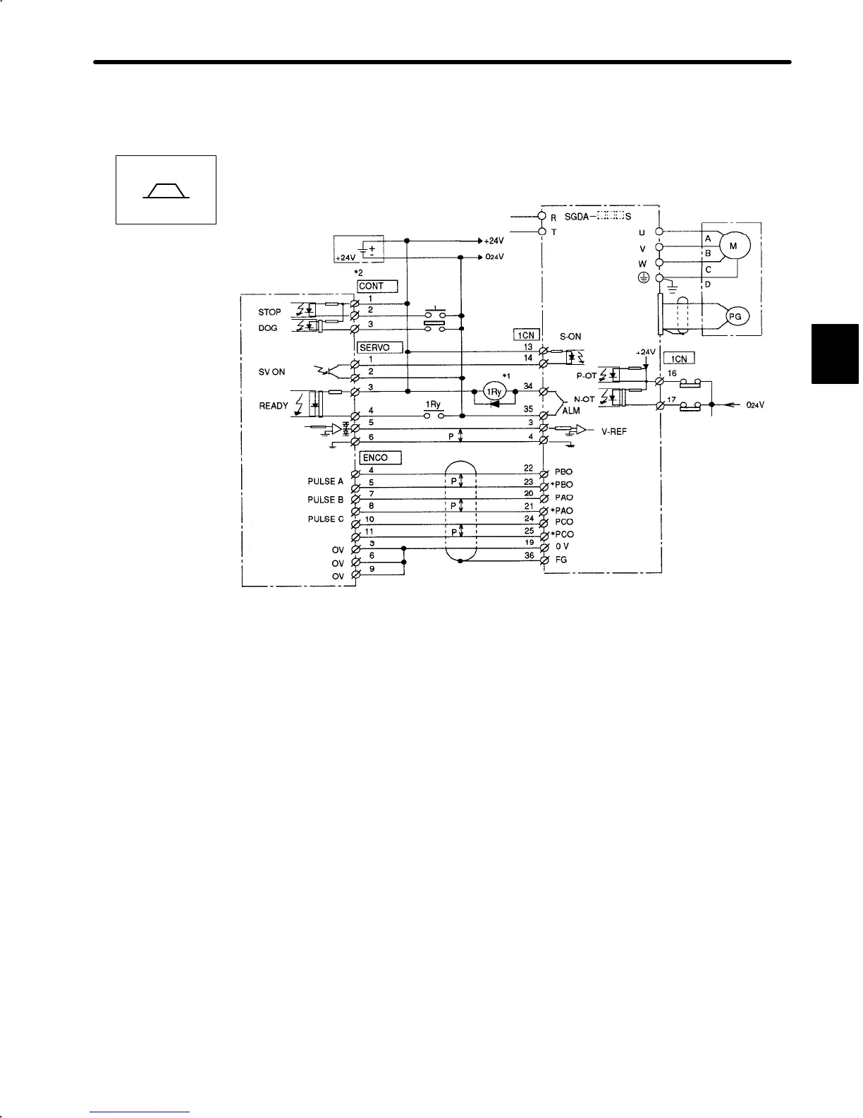
7) Example of Connecting to MITSUBISHI Positioning Unit AD72
Servopack for Speed/Torque Control
I/O POWER SUPPLY
SERVOPACK
(ON when position-
ing is stopped)
(ON when proximity
is detected)
SPEED
REF-
ERENCE
*1 These signals are output for approximately two seconds when the power is turned ON. Take this into
consideration when designing a power ON sequence. Relay 1Ry is used to stop main circuit power
supply to Servopack.
*2 These pin numbers are the same for both X and Y axes.
Note The signals shown here are applicable only to MITSUBISHI Sequencer AD72 and Yas-
kawa Servopack SGDA-VVVS.
AD72
(MADE BY MITSUBISHI)
2
SGDA-jjj S
Speed/Torque

Table of Contents

Other manuals for YASKAWA SGM series

Related product manuals