EasyManua.ls Logo

Yazaki AROACE - Chilled;Hot Water Piping; Cooling Water Piping

Default Icon
24 pages
Print Icon
To Next Page IconTo Next Page
To Next Page IconTo Next Page
To Previous Page IconTo Previous Page
To Previous Page IconTo Previous Page
Loading...
17
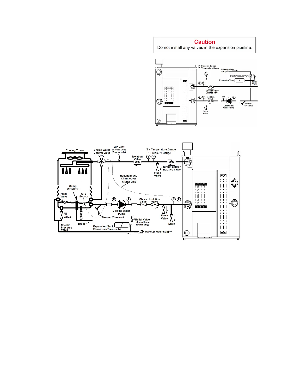
CHILLED/HOT WATER PIPING
A balance valve should be installed at the
chilled/hot water outlet and a stop valve should
be installed at the chilled/hot water inlet. Both
valves should be placed in close proximity to the
chiller-heater.
After thoroughly testing for leaks, insulate the
piping circuit, ensuring an adequate vapor barrier
is obtained. Be sure to allow access to any
valves, wells, and ports that may be present.
Also, ensure the chiller-heater panels are not
restricted by the insulation.
COOLING WATER PIPING
Cooling water should be supplied at 85°F
(29.5°C) or less. The CH-K Series can typically
accept cooling water down to 77°F (25°C) without
use of a mixing valve. However, the inlet cooling
water temperature must not be below 46.4°F
(8°C) when the cooling cycle starts, nor may it
drop to 46.4°F (8°C) and remain there for more
than 3 minutes at any point in time. Such cases
will result in the generation of error code E043.
To prevent this, a mixing valve or a diverting
valve should be installed so that when cooling
water is too cold, the cooling water returning from
the chiller-heater is diverted directly into the sump
of the cooling tower in order to preserve and build
up heat. Once the cooling water temperature
rises to an acceptable temperature, the valve can
allow the returning cooling water to flow through
the tower medium once more.
If cooling water exceeds 90°F (3C), the
refrigerant vapor may no longer condense
properly, which could lead to a loss of capacity as
well. If the cooling water becomes consistently
too hot, the unit may lock out with error code E25.
If possible, the cooling tower should be
installed at or above the level of the chiller-
heater. If this is not possible, give careful
consideration to the prevention of drain-back and
loss of cooling water due to overflow of the tower.
The design engineer must also take proper
and appropriate steps to prevent damage to the
cooling tower fill media as a result of mode
change-over. When switching from heat to cool
mode, for a short time the cooling water can
return from the chiller-heater at temperatures in
excess of 130°F (54°C). This hot slug of water