EasyManua.ls Logo

Yazaki AROACE - Internal Wiring Diagram

Default Icon
24 pages
Print Icon
To Next Page IconTo Next Page
To Next Page IconTo Next Page
To Previous Page IconTo Previous Page
To Previous Page IconTo Previous Page
Loading...
5
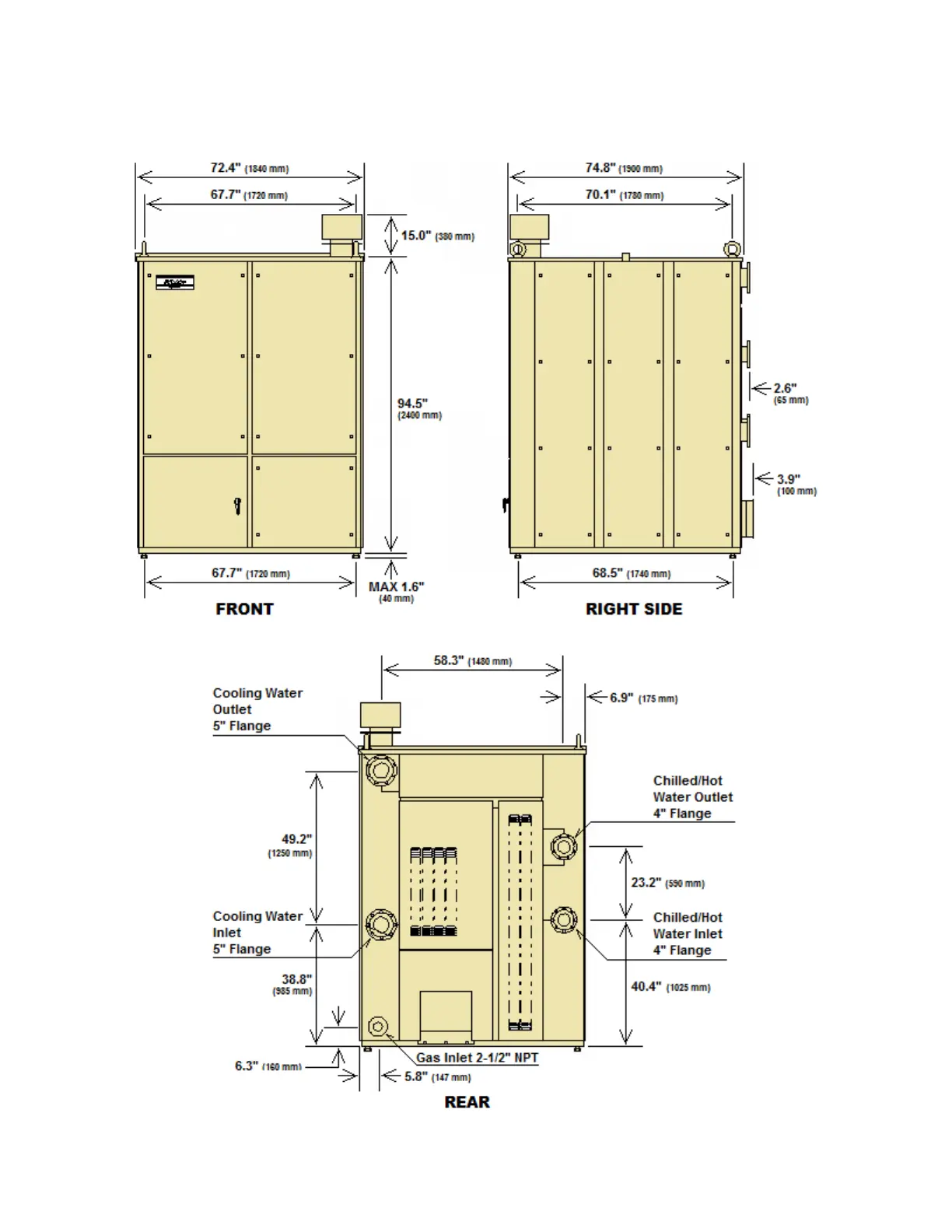
EQUIPMENT DIMENSIONS
(Drawings Not to Scale)

Other manuals for Yazaki AROACE

Related product manuals