EasyManua.ls Logo

3Com CS/2500 - Server Components

3Com CS/2500
116 pages
Print Icon
To Next Page IconTo Next Page
To Next Page IconTo Next Page
To Previous Page IconTo Previous Page
To Previous Page IconTo Previous Page
Loading...
Upgrades 5-7
4 Grasp both sides of the cover and carefully lift it off.
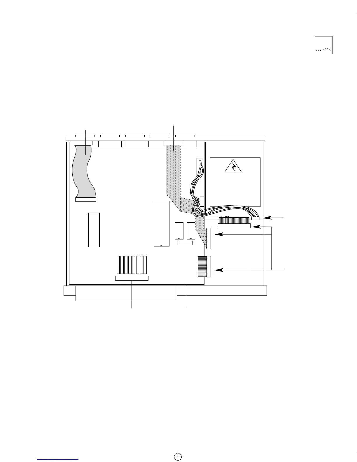
Figure 5-4 shows a view of the server interior and its components.
Figure 5-5 shows the motherboard and the locations of the memory chips
and EPROMs that can be replaced.
Figure 5-4 Server Components
Rear
Front
Daughtercard
assembly and
diskette drive
(CS/2600 only)
Power supply
WARNING:
Hazardous voltage.
Do not open.
No user-serviceable
parts inside.
Memory chips (RAM) EPROMs
Printer cableTransceiver connector
and cable
Motherboard
Ribbon cable
connectors
Power wiring
harness connector
CS2500BookFile : MaintenanceUpgrades Page 7 Thursday, December 11, 1997 10:44 AM

Table of Contents

Related product manuals