EasyManua.ls Logo

3Com CS/2500 - Removing the Diskette Drive

3Com CS/2500
116 pages
Print Icon
To Next Page IconTo Next Page
To Next Page IconTo Next Page
To Previous Page IconTo Previous Page
To Previous Page IconTo Previous Page
Loading...
Upgrades 5-9
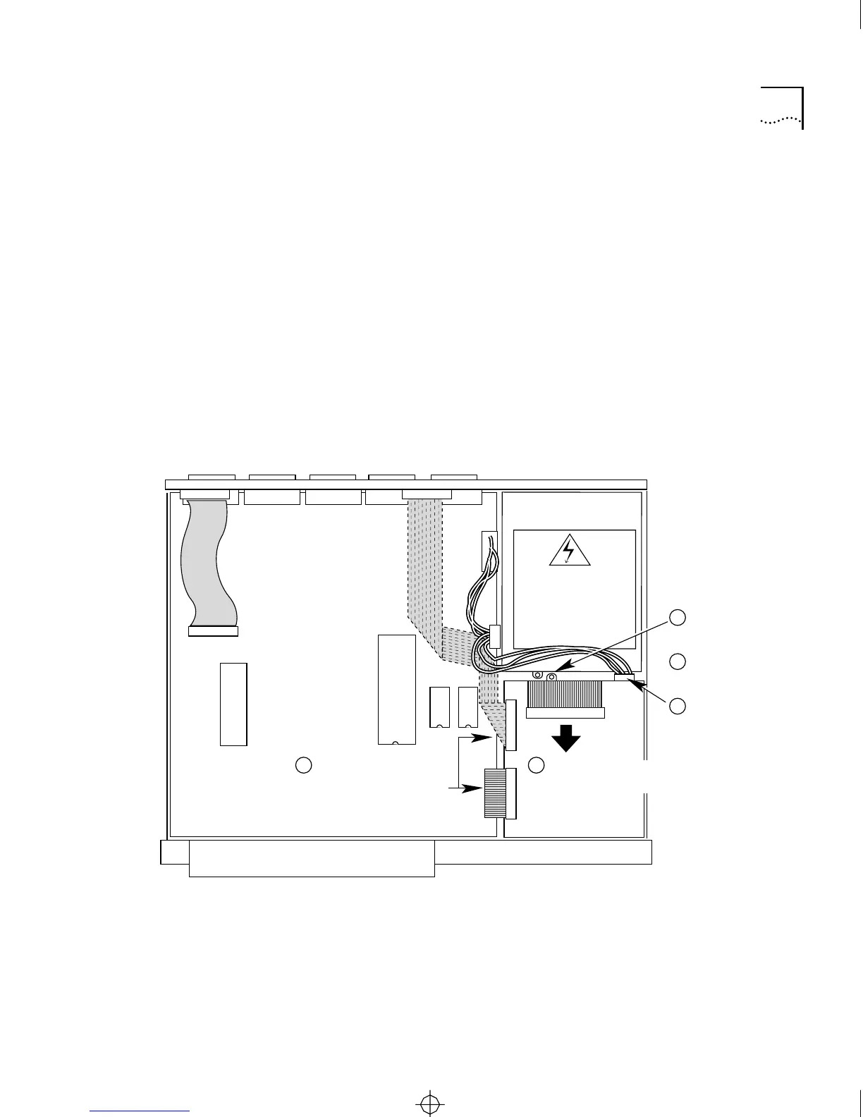
b Disconnect the cable attached to the rear of the daughtercard. Pull it
toward you to expose the mounting screw that fastens the diskette
drive bracket to the bottom of the chassis (step 2 in Figure 5-6).
c Remove the mounting screw (step 3 in Figure 5-6).
d Slide the bracket toward the rear and lift it and the diskette drive out
of the chassis (step 4 in Figure 5-6).
The bottom of the bracket has two keyhole slots that fit over
standoffs on the bottom of the chassis. You must slide the bracket far
enough to the rear to lift it off the standoffs.
e Disconnect the power wiring harness from the connector on the rear
of the diskette drive (step 5 in Figure 5-6).
Figure 5-6 Removing the Diskette Drive
4 Remove the remaining ribbon cable from the connector on the rear of
the diskette drive.
Be careful to note the orientation of the cable.
Rear
Front
Power supply
WARNING:
Hazardous voltage.
Do not open.
No user-serviceable
parts inside.
Motherboard
Daughtercard
Remove
screw.
3
2
Remove
power wiring
harness connector.
4
Pull out diskette
drive.
5
1
Disconnect cable and
pull taut to expose screw.
Disconnect these cables
from the diskette drive.
CS2500BookFile : MaintenanceUpgrades Page 9 Thursday, December 11, 1997 10:44 AM

Table of Contents

Related product manuals