EasyManua.ls Logo

3M 3M-Matic 7000r3 Pro - Machine Noise Levels; Machine Dimensions; Set-Up Recommendations

3M 3M-Matic 7000r3 Pro
190 pages
To Next Page IconTo Next Page
To Next Page IconTo Next Page
To Previous Page IconTo Previous Page
To Previous Page IconTo Previous Page
Loading...
17
Packaged: Weight: 225 kg [500 pounds] crated (approximate)
49 1/2" [1257] (H) x 51" [1295] (L) x 42" [1067] (W) 200 kg [430 pounds] uncrated (approximate)
4.11 Machine Noise Level:
78dB with tape roll inserted.
4.12 Set-Up Recommendations:
Machine must be level.
Supplied infeed and optional exit conveyors (if used) should provide straight and level box entry/exit.
Optional exit conveyor (powered or gravity) can help move sealed boxes away from machine.
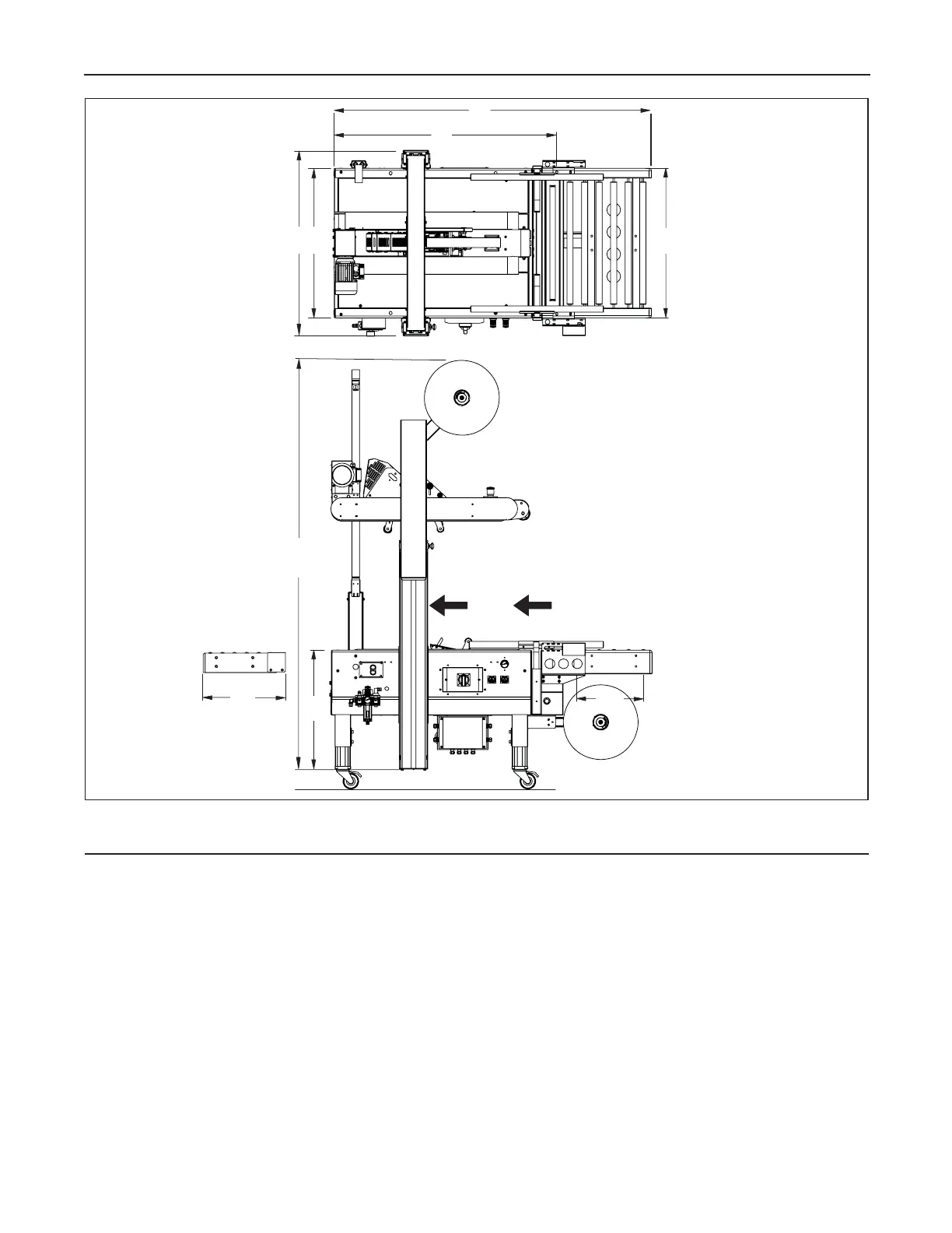
4.10 Machine Dimensions:
W L H A B C F T
Minimum
mm 959 1180 1575 457 597*** 111 768 1637
[Inches] [37 3/4] [46 1/2] [62] [18] [23 1/2] [4 3/8] [30 1/4] [64 1/2]
Maximum
mm 2642 890
[Inches] - - - - [104] - - [35] - - - - -
2014 June
7000r-7000r3 Pro - NA
Right Side
Control Side
F FW
L
T
Standard
Infeed
Conveyor
Box Travel
H
B***
C**
Optional Casters
A*
4-SPECIFICATIONS (continued)
A*
Optional
Exit
Conveyor
Note:
* Exit conveyor is optional
** Casters are optional
*** Columns must be adjusted upward
to reach minimum bed height

Table of Contents

Related product manuals