EasyManua.ls Logo

3M 3M-Matic 7000r3 Pro - Page 67

3M 3M-Matic 7000r3 Pro
190 pages
To Next Page IconTo Next Page
To Next Page IconTo Next Page
To Previous Page IconTo Previous Page
To Previous Page IconTo Previous Page
Loading...
55
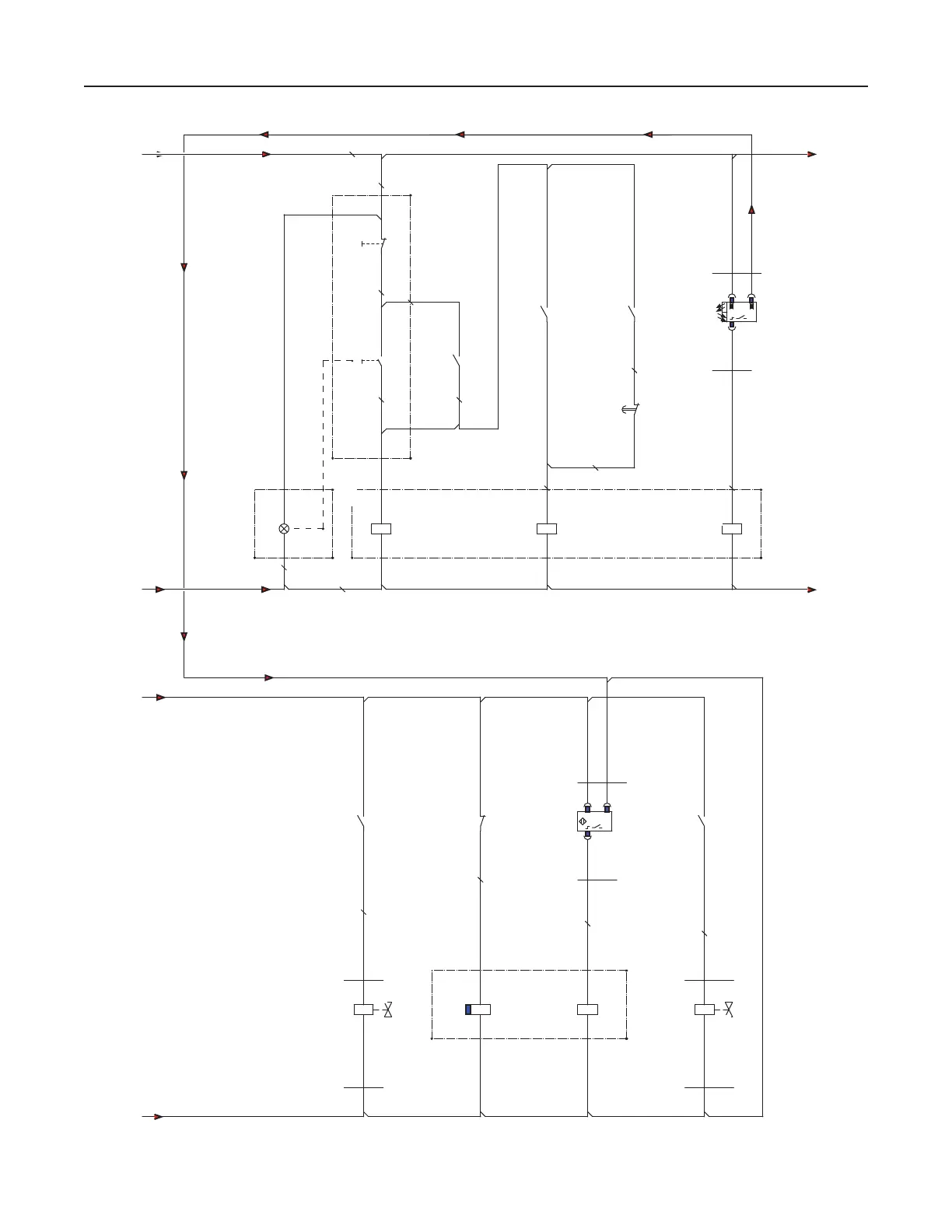
16-TECHNICAL DIAGRAMS (continued)
2014 June
7000r-7000r3 Pro - NA
24V 24V
24V
0V 0V
0V
Continued
from
Previous
Page
Continued
from
Previous
Page
Continued
below
Continued
below
continued
continued
Stop
S41
Start
S31
13
11
13
2
BN
2
BU
12
14
A1
A1 A1 X1
X1
X1
T1
A1 A1
A2
A2 A2 X2
X2
X2
A2 A2
17
3
3
1
1
2
2
3
3
3
5
55 6
14
18
4
7
7
4
6 6 7
6
9
KM1
H1
M5 M3
M3
M5
W9
W7 W8
W8
W7
-Y2
-Y3
B1
W9
B2
W9
KM1
KA101
KA101
KA102
KA102
KA100
KA100
KA100
Box
Centering
Upper
Assy
Raising
KA101

Table of Contents

Related product manuals