EasyManua.ls Logo

ABB AK101 - Page 21

ABB AK101
52 pages
Print Icon
To Next Page IconTo Next Page
To Next Page IconTo Next Page
To Previous Page IconTo Previous Page
To Previous Page IconTo Previous Page
Loading...
19
5 ELECTRICAL INSTALLATION...
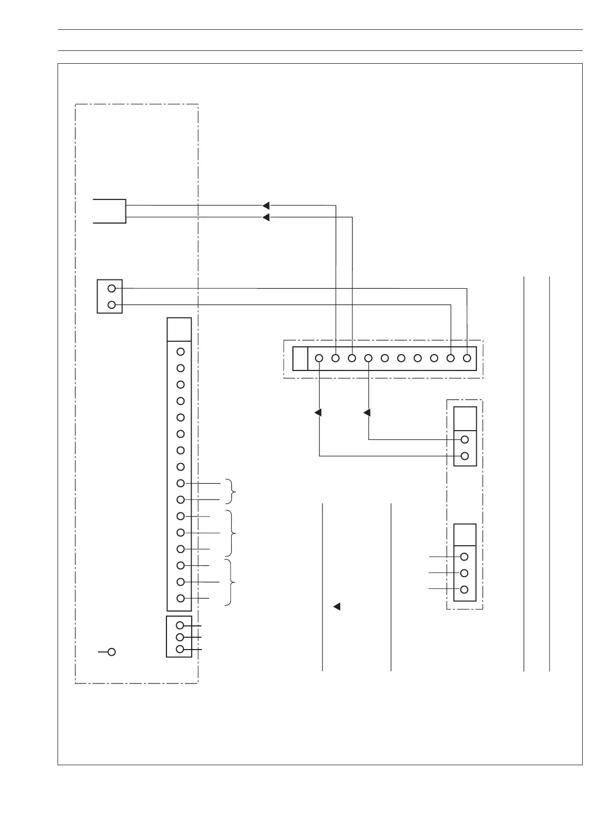
TB1
1
2
3
4
5
6
7
8
9
10
Katharometer
Unit
Gas Panel 1
(H
2
in Air)
TB1
TB2
Power Supply Unit 1
4234
LN
E
External
power supply
Note. Interconnections
marked with MUST conform to the
intrinsically safe wiring requirements
given in the text.
All other wiring to suit power and signal
requirements
+ –
Zener diode safety
barrier devices
L N E
12345678910111213141516
TB4
External bonding
and earth
TS1
Monitor
17 18
B1
4 3
TB5
TB2
Note.
Katharometer Gas Unit Panel 1 is connected internally within 6553 Gas Monitor to Upper Display
MTL 7755ac
NO
NC
COM
Alarm 1
H
2
in Air
NO
NC
COM
Alarm 2
H
2
in Air
H
2
in Air
Value
Retransmit
+ –
+
+
Fig. 5.6a Interconnection Wiring Diagram – AK104 Intrinsically Safe Analyzer System (Hydrogen Purity)

Related product manuals