EasyManua.ls Logo

ABB REF 610 - Trip Lockout Function

ABB REF 610
172 pages
Print Icon
To Next Page IconTo Next Page
To Next Page IconTo Next Page
To Previous Page IconTo Previous Page
To Previous Page IconTo Previous Page
Loading...
+
-
R
ext
R
int
TCS
HW
SW
X4.1
R
s
18
19
16
17
SO2
7
8
6
HMI
PO1
SGF1/8
TRIP-CIRCUIT
SUPERVISION
TCS STATE WARNING
A040329_2
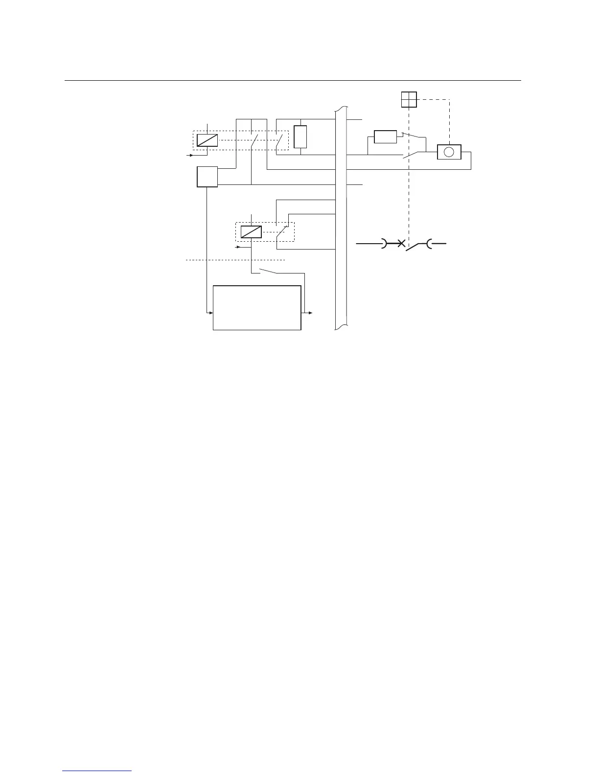
Fig. 5.1.5.-1 Connecting the trip-circuit supervision using two external contacts and
the external resistor in the trip circuit
5.1.6. Trip lockout function
The trip lockout function is used to prevent accidental closing of the circuit breaker
after a trip. The trip lockout function must be locally reset with a separate reset
command before the circuit breaker can be closed again. This function is useful
when the trip output contact of the relay is latched or the open circuit of the circuit
breaker remains activated.
The trip lockout function is selected in SGF1. When selected, PO3 is dedicated to
this function. As long as no trip occurs, PO3 is closed.
Every signal which has been routed to PO3 via the output signal matrix activates the
trip lockout function and opens the contacts of PO3. When the contacts have
opened, they are locked into the open state.
The trip lockout function can also be activated externally, via a digital input. The
trip lockout function can be reset via a digital input, the HMI or SPA parameter
V103, but not before the signal which activated the function has been reset.
In case of loss of auxiliary power when the trip lockout function is in use, the
contacts of PO3 return to the same state as before the loss, provided that the battery
has been inserted and is charged. If no battery has been inserted, the trip lockout
function is activated and the contacts of PO3 remain open when the auxiliary power
is switched on again.
72
REF 610REF 610
Feeder Protection Relay
Technical Reference Manual
1MRS755310

Table of Contents

Other manuals for ABB REF 610

Related product manuals