EasyManua.ls Logo

ABB REF542plus - Page 42

ABB REF542plus
66 pages
Print Icon
To Next Page IconTo Next Page
To Next Page IconTo Next Page
To Previous Page IconTo Previous Page
To Previous Page IconTo Previous Page
Loading...
Multifunction Protection and Switchgear Control unit REF542plus
Manual: Motor Protection with ATEX-Certification
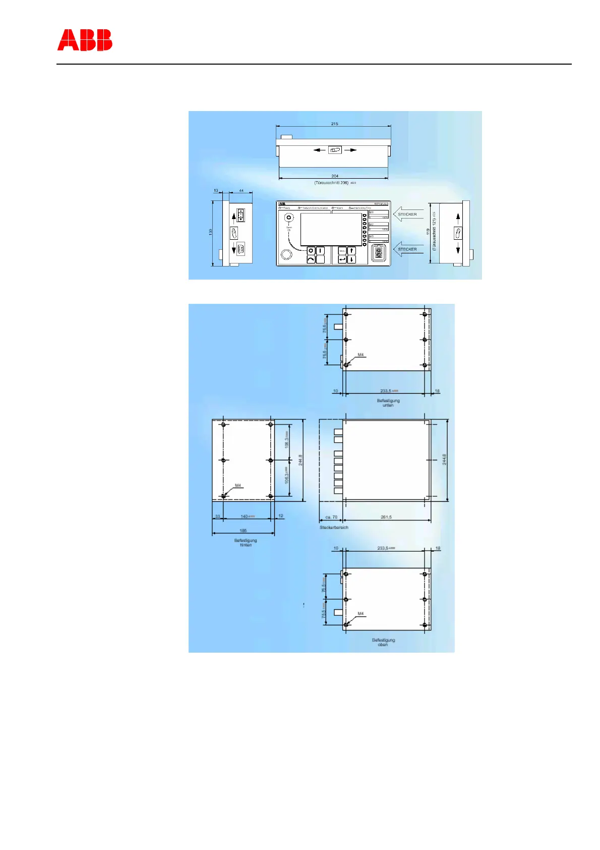
The figures below show the dimensions of the HMI Control Unit and Central Unit.
Figure 15: Dimension of the HMI Control Unit
Figure 16: Dimension of the Central Unit case, standard version
1VTA100114-Rev. 04 en PTMV, 19.01.05 Motorprotection 42 / 66
Valid from Version V4D02

Table of Contents

Other manuals for ABB REF542plus

Related product manuals