EasyManua.ls Logo

Abus TVVR20001 - Getting Started and Safety; Device Overview

Abus TVVR20001
Print Icon
To Next Page IconTo Next Page
To Next Page IconTo Next Page
To Previous Page IconTo Previous Page
To Previous Page IconTo Previous Page
Loading...
Geräteübersicht
3
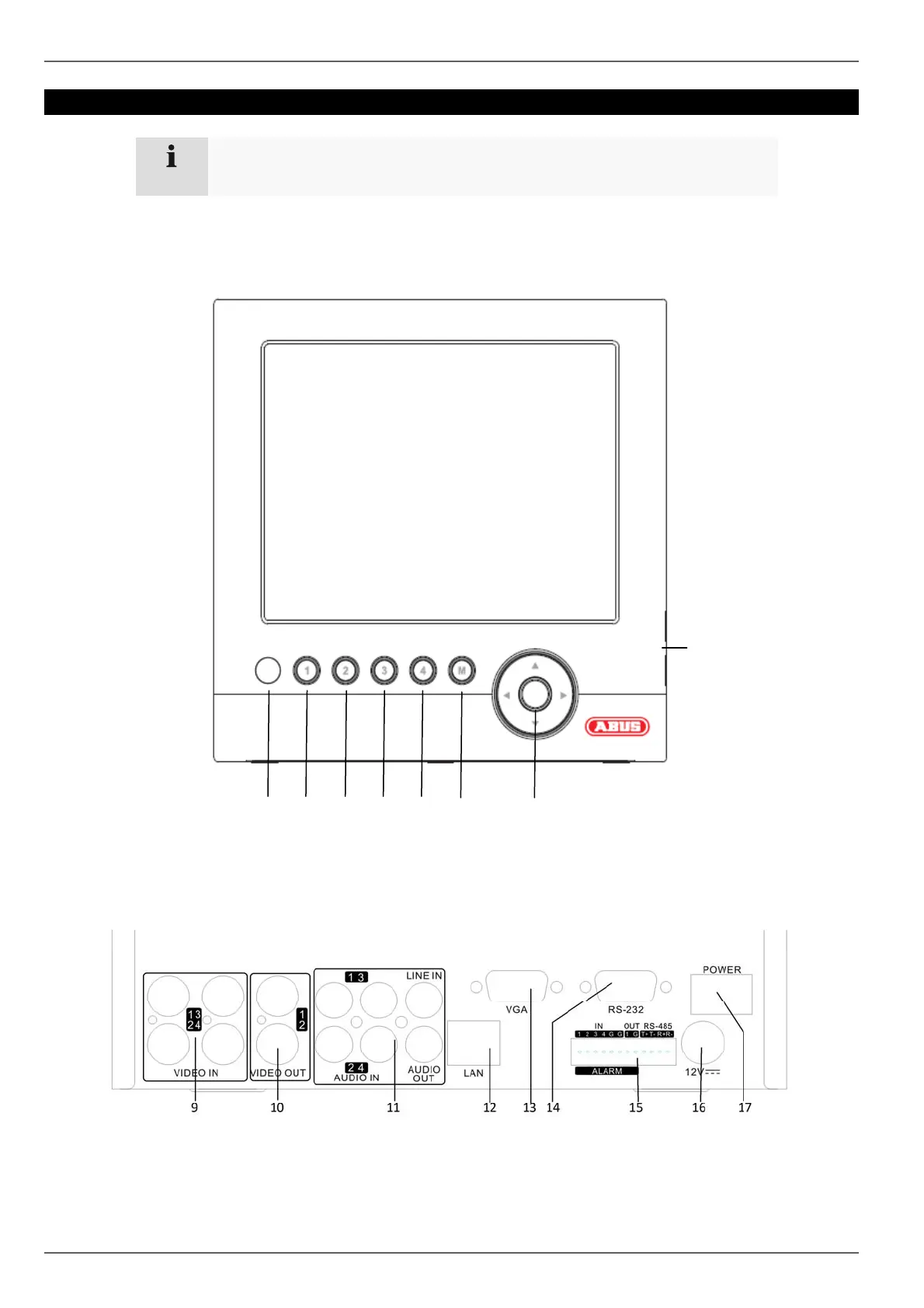
Geräteübersicht
Front
Rückseite
Siehe Systembedienung S. 13.
1 2 3 4 5 6 7
8

Table of Contents

Related product manuals