EasyManua.ls Logo

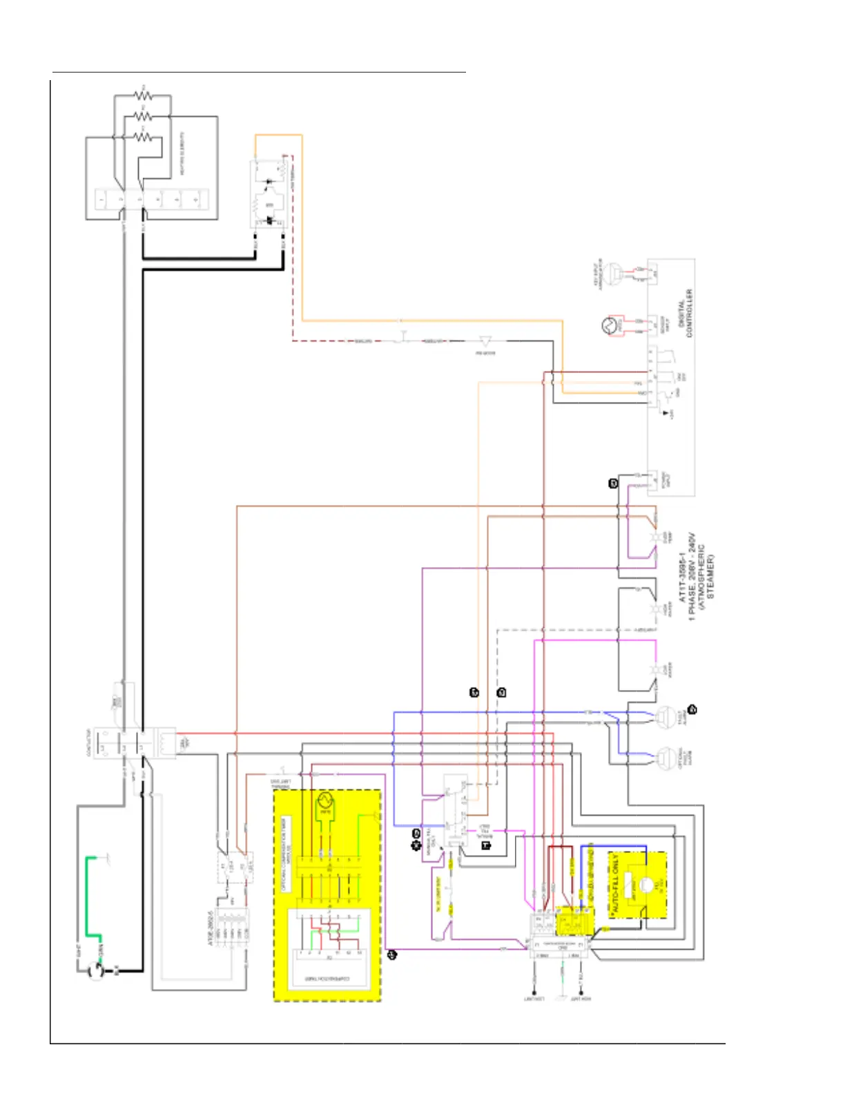
AccuTemp Evolution - Wiring Schematic for SN 36981 and above

AccuTemp Evolution
59 pages
Print Icon
To Next Page IconTo Next Page
To Next Page IconTo Next Page
To Previous Page IconTo Previous Page
To Previous Page IconTo Previous Page
Loading...
SP8026-1909
EVOLUTION ELECTRIC STEAMER
51
5.2 Wiring Schematic for SN 36981 and Above

Related product manuals