EasyManua.ls Logo

Allen-Bradley 1746-NT8 - Page 61

Allen-Bradley 1746-NT8
110 pages
Print Icon
To Next Page IconTo Next Page
To Next Page IconTo Next Page
To Previous Page IconTo Previous Page
To Previous Page IconTo Previous Page
Loading...
Publication 1746-UM022B-EN-P - January 2005
Programming Examples 5-5
B3:6
4
CHECKING_CJC
EN
DN
TON
Timer On Delay
Timer T11:1
Time Base 1.0
Preset 7<
Accum 0<
TON
CJC_CFG_TMR
T11:1
DN
CJC_CFG_TMR/DN
OSR
B3:0
4
MOV
Move
Source I:1.0
3744<
Dest N10:12
329<
MOV
CJC_TEMP
T11:1
DN
CJC_CFG_TMR/DN
MOV
Move
Source N10:0
-32767<
Dest O:1.0
-32767<
MOV
NT8_CONFIGURATION
EN
DN
TON
Timer On Delay
Timer T11:2
Time Base 1.0
Preset 7<
Accum 0<
TON
REG_CFG_TMR
T11:2
DN
REG_CFG_TMR/DN
U
B3:6
4
CHECKING_CJC
END
0005
0009
0008
0007
0006
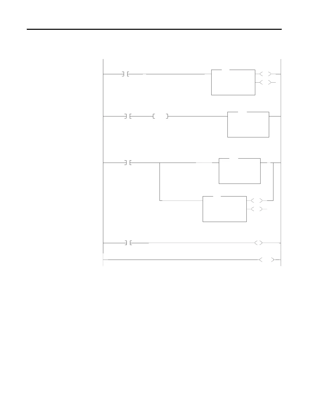
Wait 7 seconds for Channel 0 to accept CJC configuration and provide a data value (time
depends on module configuration).
Copy CJC Temperature (I:1.0) into CJC register (N10:12)
Move Channel 0’s regular configuration word into the Channel 0 configuration word and start timer to
ensure word has been accepted prior to taking the thermocouple temperature readings.
When CJC check cycle is completed (T1 1:2/DN is set), reset the Checking CJC Bit (B3/100).

Table of Contents

Related product manuals