EasyManua.ls Logo

Allen-Bradley PowerFlex 20-750-ENC-1 - Page 103

Allen-Bradley PowerFlex 20-750-ENC-1
302 pages
Print Icon
To Next Page IconTo Next Page
To Next Page IconTo Next Page
To Previous Page IconTo Previous Page
To Previous Page IconTo Previous Page
Loading...
Rockwell Automation Publication 750-IN001O-EN-P - October 2014 103
Lift and Mount the Drive Chapter 3
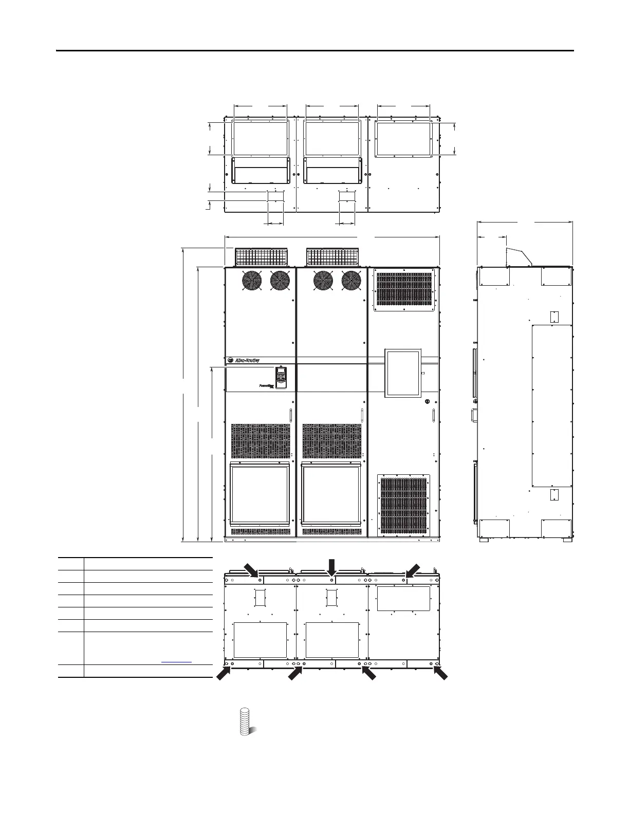
Figure 64 - IP20, NEMA/UL Type 1, MCC Style Cabinet, Floor Mount Frame 9
Enclosure Code L, P, W - 800 mm Deep Drive with Cabinet Options Bay.
M12 (1/2 in.) Property Class 8.8 anchoring hardware recommended to
fasten the drive cabinet through its internal mounting angle to the
foundation. Anchor bolts may be pre-located and embedded in the
foundation prior to instillation.
1800
(70.9)
440
(17.3)
440
(17.3)
2453
(96.6)
2300
(90.6)
800
(31.5)
240
(9.4)
➊➊
440
(17.3)
270
(10.6)
270
(10.6)
1464
(57.6)
127
(5.0)
127
(5.0)
76
(3.0)
No. Description
Power wiring conduit plates.
Control wiring conduit plates.
Optional exhaust hood.
Optional HIM.
Option bay disconnect switch access door.
Interlock override switch.
For instructions and precautions refer to the
Hardware Service Manual, 750-TG001
.
Recommended seven-hole anchoring.
BOTTOM
TOP

Table of Contents

Related product manuals