EasyManua.ls Logo

Allen-Bradley PowerFlex 20-750-ENC-1

Allen-Bradley PowerFlex 20-750-ENC-1
302 pages
To Next Page IconTo Next Page
To Next Page IconTo Next Page
To Previous Page IconTo Previous Page
To Previous Page IconTo Previous Page
Loading...
120 Rockwell Automation Publication 750-IN001O-EN-P - October 2014
Chapter 3 Lift and Mount the Drive
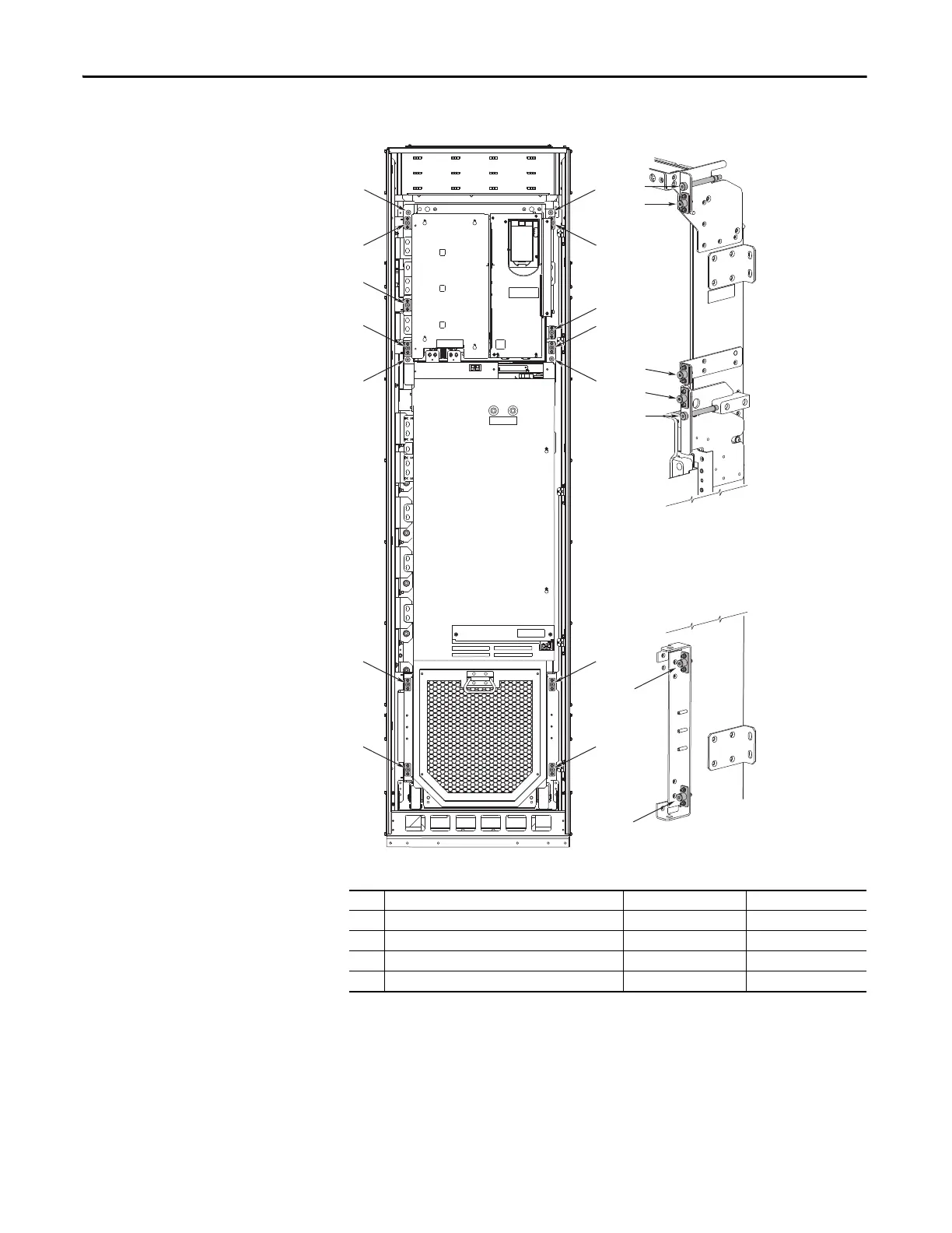
Figure 80 - Drive-To-Cabinet Connections
No. Description Torque Recommended Tool
Converter-to-vent hood anchor bolts (2 places). 11.3 N•m (100 lb•in) 5 mm hex key (Allen)
Converter-to-cabinet anchor bolts (4 places). 11.3 N•m (100 lb•in) 5 mm hex key (Allen)
Inverter-to-cabinet anchor bolts (6 places). 11.3 N•m (100 lb•in) 5 mm hex key (Allen)
Inverter-to-converter connector bolts (2 places). 11.3 N•m (100 lb•in) 5 mm hex key (Allen)
AC Input Drive Shown

Table of Contents

Related product manuals