EasyManua.ls Logo

Allen-Bradley PowerFlex 20-750-ENC-1 - Page 199

Allen-Bradley PowerFlex 20-750-ENC-1
302 pages
Print Icon
To Next Page IconTo Next Page
To Next Page IconTo Next Page
To Previous Page IconTo Previous Page
To Previous Page IconTo Previous Page
Loading...
Rockwell Automation Publication 750-IN001O-EN-P - October 2014 199
Power Wiring Chapter 4
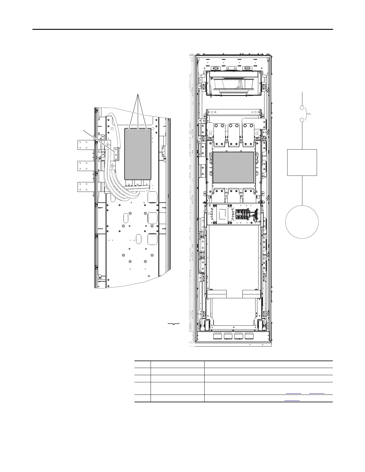
Figure 103 - Option P3 or P5 Disconnect
U / T1
V / T2
W / T3
Drive
Motor
P3 or P5
Floor Mount Frame 8 Floor Mount Frame 9
No. Name Description
R/L1, S/L2, T/L3 Three-phase input power connection.
PE Three-phase input ground.
R/L1, S/L2, T/L3 Three-phase input power for frame 9 drives lands on the horizontal bus bars
behind the cabinet options rollout assembly. See page 164
and page 165.
U/T1, V/T2, W/T3 Motor connection made at drive power bus. See page 156
.

Table of Contents

Related product manuals