EasyManua.ls Logo

Allen-Bradley PowerFlex 20-750-ENC-1 - Page 200

Allen-Bradley PowerFlex 20-750-ENC-1
302 pages
Print Icon
To Next Page IconTo Next Page
To Next Page IconTo Next Page
To Previous Page IconTo Previous Page
To Previous Page IconTo Previous Page
Loading...
200 Rockwell Automation Publication 750-IN001O-EN-P - October 2014
Chapter 4 Power Wiring
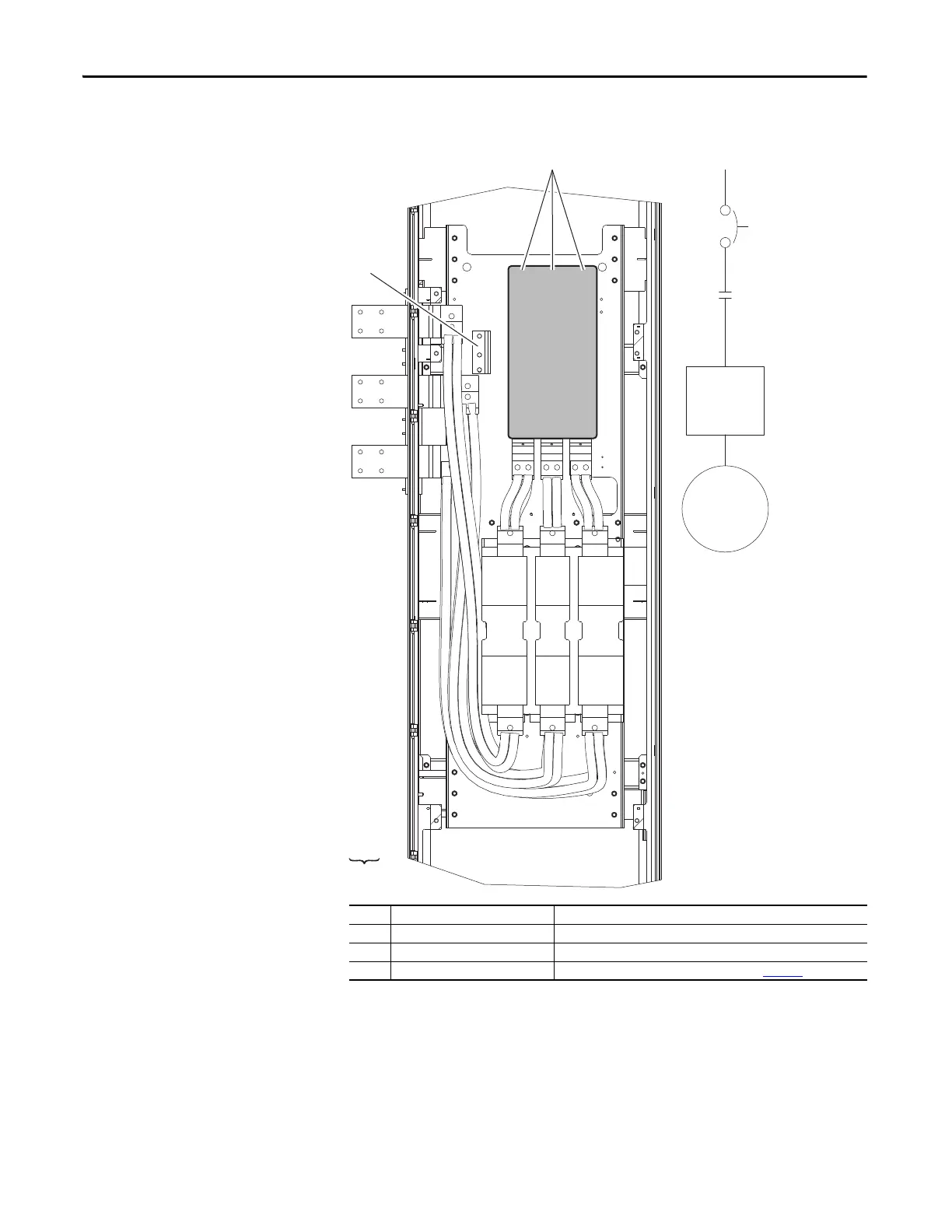
Figure 104 - Option P3 or P5 Disconnect and Option P11 Input Contactor
(Floor Mount Frame 8 Only)
No. Name Description
R/L1, S/L2, T/L3 Three-phase input power connection.
PE Three-phase input ground.
U/T1, V/T2, W/T3 Motor connection made at drive power bus. See page 156
.
U / T1
V / T2
W / T3
Drive
Motor
P3 or P5
P11

Table of Contents

Related product manuals