EasyManua.ls Logo

Amana VCA - Blower Coil Dimensions

Amana VCA
243 pages
Print Icon
To Next Page IconTo Next Page
To Next Page IconTo Next Page
To Previous Page IconTo Previous Page
To Previous Page IconTo Previous Page
Loading...
17 Rev. 3
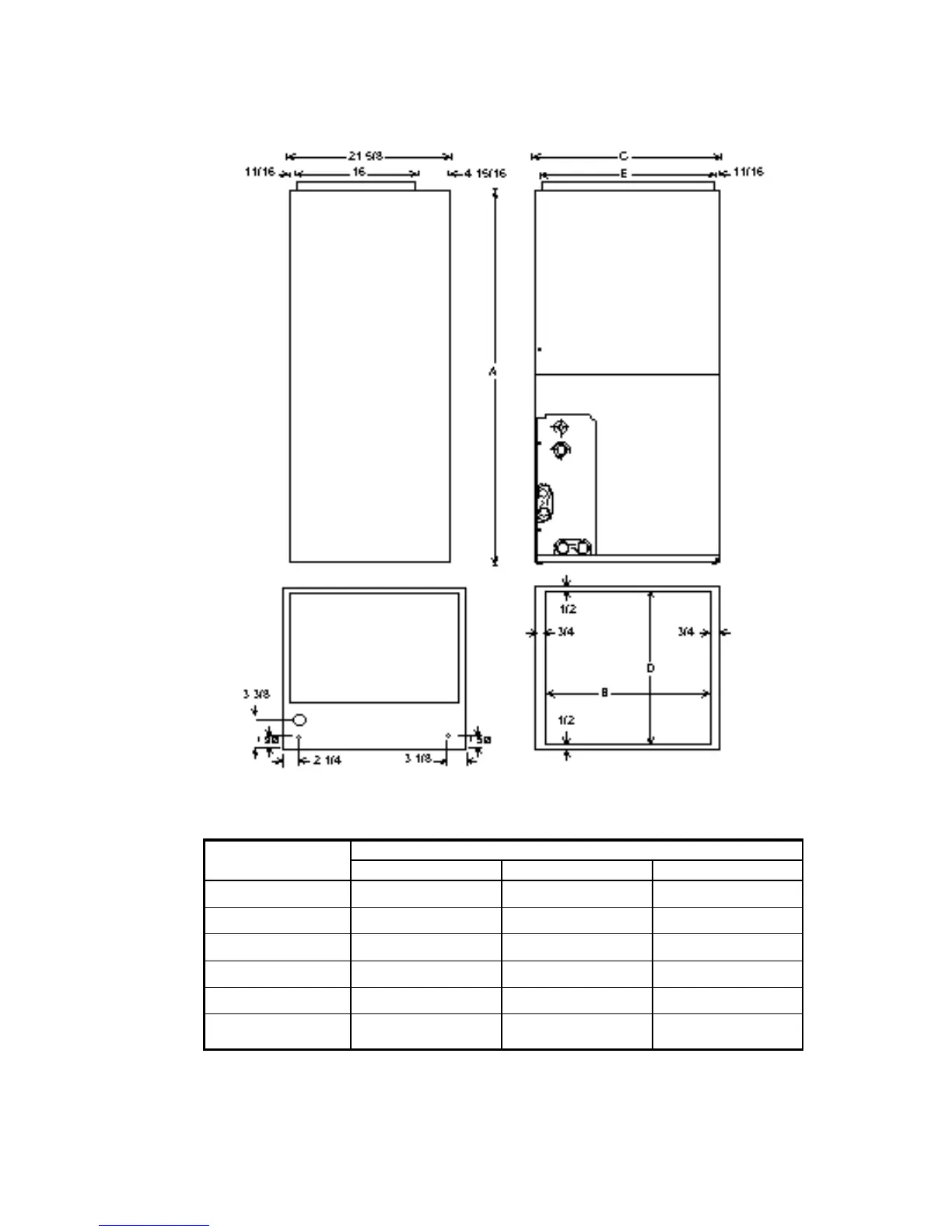
BCA/BHA BLOWER COIL SPECIFICATIONS
BLOWER COIL DIMENSIONS
UNIT SIZE
18 - 36 42 48 - 60
A 49 7/8 50 56 3/8
B192327
C 20 1/2 25 28 1/2
D 20 5/8 21 20 5/8
E 18 7/8 23 26 7/8
FILTER SIZE
(NOMINAL)
16 x 20 x 1 20 x 20 x 1 20 x 23 1/2 x 1
DIMENSION

Table of Contents

Other manuals for Amana VCA

Related product manuals