EasyManua.ls Logo

Amana VCA - Rcc42;60 A2 B & Rce24-60 A2 A

Amana VCA
243 pages
Print Icon
To Next Page IconTo Next Page
To Next Page IconTo Next Page
To Previous Page IconTo Previous Page
To Previous Page IconTo Previous Page
Loading...
207 Rev. 3
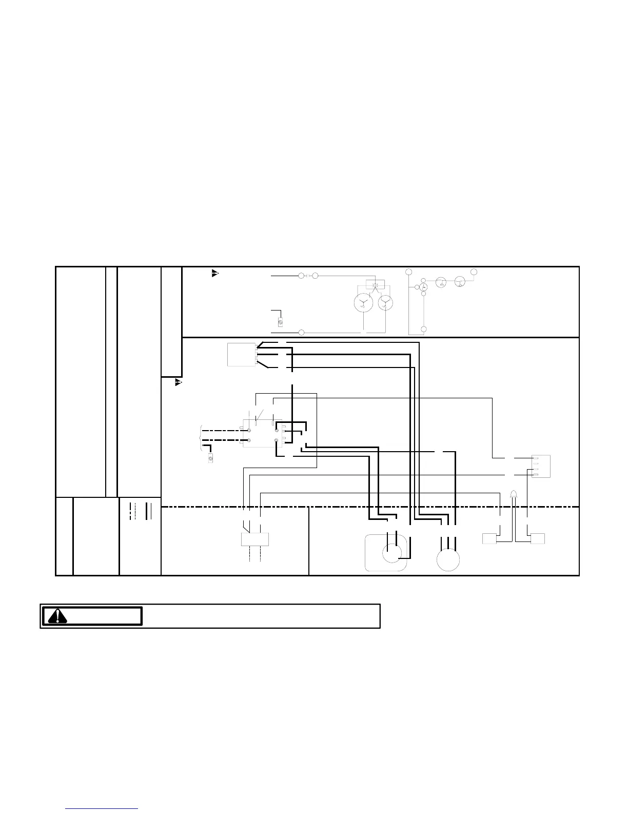
WIRING DIAGRAMS
TO AVOID POSSIBLE ELECTRICAL SHOCK, PERSONAL INJURY
,
OR DEATH, DISCONNECT THE POWER BEFORE SERVICING.
WARNING
RCC42/60A2B & RCE24-60A2A
NOTES
1. SEE ELECTRICAL INFORMATION ON UNIT NAMEPLATE. FIELD CONNECTIONS FOR
UNITS ARE TO BE MADE AT CONTACTOR & EQUIPMENT GROUND SCREW.
2. FOR FIELD CONNECTIONS SEE INSTALLATION INSTRUCTIONS.
3. TRANSFORMER N.E.C. CLASS 2, 24VAC OUTPUT, 20VA MINIMUM.
CANADIAN REQUIREMENTS:
4.
NEUTRAL, IF INPUT POWER DERIVED FROM 240/416 SOURCE.
5. CONTROL CIRCUIT GROUND.
6. 120/240 VAC 3 WIRE
1. AMANA APPROVED REPLACEMENT PARTS MUST BE USED WHEN SERVICING.
2. TOTAL SYSTEM CHARGE IS MARKED ON CONDENSER NAMEPLATE
WHICH INCLUDES INDOOR SECTION AND 25 FEET OF INTERCONNECTING
.250 LIQUID LINE .20 OZ. PER FOOT
.375 LIQUID LINE .60 OZ. PER FOOT
.500 LIQUID LINE 1.30 OZ. PER FOOT
TOTAL CHARGE BLOCK MUST BE STAMPED BY THE DEALER WHO INSTALLS THE UNIT.
FOR MORE COMPLETE INSTRUCTIONS SEE INSTALLATION INSTRUCTIONS.
FACTORY SUPPLIED WIRING
LOW VOLTAGE
HIGH VOLTAGE
FIELD SUPPLIED WIRING
LOW VOLTAGE
HIGH VOLTAGE
COLOR CODE
1ST GROUP-COLOR
2ND GROUP-NUMBER
OR-ORANGE
YL-YELLOW
VT-VIOLET
BR-BROWN
GN-GREEN
BK-BLACK
BU-BLUE
RD-RED
TN-TAN
111078701 REV 0
LIQUID LINE, IF DIFFERENT LIQUID LINE LENGTH IS USED ADJUST PER
FOLLOWING CHART.
NOTE: THIS UNIT IS EQUIPPED WITH A COMPRESSOR CRANKCASE HEATER. DO NOT
OPERATE UNIT UNLESS HEATER HAS BEEN ENERGIZED FOR A MINIMUM OF FOUR HOURS.
NOTE: READ THE FOLLOWING NOTES BEFORE OPERATING OR SERVICING THIS UNIT.
ACCESSORIES:
WARNING:
WIRING TO UNIT MUST
BE PROPERLY POLARIZED
(AS APPLICABLE) AND
GROUNDED. DISCONNECT
POWER BEFORE SERVICING.
C
S
R
FAN
HERM
COM
CAPACITOR
OUTDOOR
FAN
MOTOR
VT20
BK27
BR11
L2
T1
T2
CONTACTOR
(CC)
FIELD CONNECTIONS
1 PH POWER
SEE NOTES 1&6
GND
COMPRESSOR
C/X
Y
BK1
WARNING:
WIRING TO UNIT MUST BE PROPERLY
POLARIZED (AS APPLICABLE) AND GROUNDED.
DISCONNECT POWER BEFORE SERVICING.
SEE
NOTE
5
R2
R1
Y2
Y1
SHORT
CYCLE
PROTECTOR
(SCP)
RD10
BK1
RD10
YL1
Y
CC
SCP
Y1
R1
R2
C/X
LPC
HPC
BU
HIGH
PRESS.
CUTOUT
(HPC)
T2
L2
L1
R
S
C
OD
COMP
CAP
F
H
C
T1
CC
FAN
YL
VT20
YL12
BK
1
VT20
VT20
BK
27
YL
12
BR
11
YL
1
VT
20
SEE
NOTE 4
RD
10
GY-GRAY
BK1
YL
LOW
PRESS.
CUTOUT
(LPC)
GND
L1

Table of Contents

Other manuals for Amana VCA

Related product manuals