EasyManua.ls Logo

Amana VCA - Rcc60 A3 B

Amana VCA
243 pages
Print Icon
To Next Page IconTo Next Page
To Next Page IconTo Next Page
To Previous Page IconTo Previous Page
To Previous Page IconTo Previous Page
Loading...
209 Rev. 3
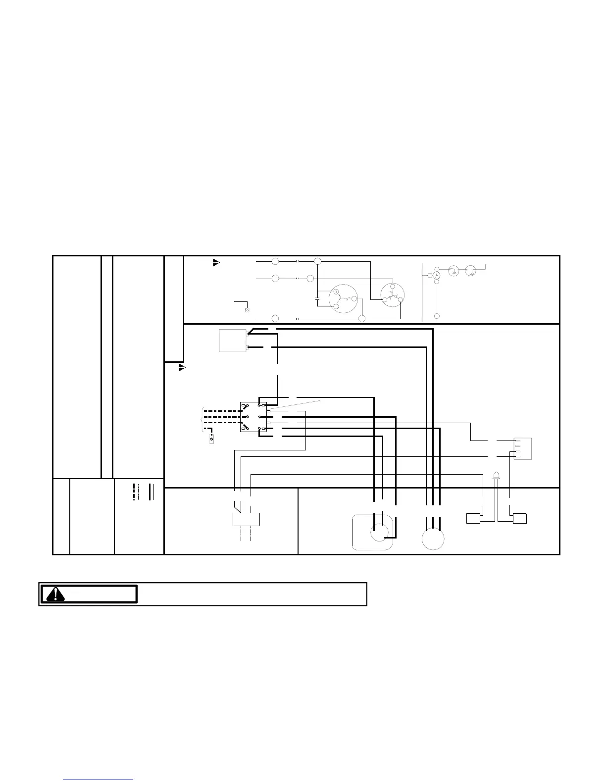
WIRING DIAGRAMS
TO AVOID POSSIBLE ELECTRICAL SHOCK, PERSONAL INJURY
,
OR DEATH, DISCONNECT THE POWER BEFORE SERVICING.
WARNING
RCC60A3B
NOTES
1. SEE ELECTRICAL INFORMATION ON UNIT NAMEPLATE. FIELD CONNECTIONS FOR
3ø UNITS ARE TO BE MADE AT CONTACTOR & EQUIPMENT GROUND SCREW.
2. FOR FIELD CONNECTIONS SEE INSTALLATION INSTRUCTIONS.
3. TRANSFORMER N.E.C. CLASS 2, 24VAC OUTPUT, 20VA MINIMUM.
CANADIAN REQUIREMENTS:
4. NEUTRAL, IF INPUT POWER DERIVED FROM 240/416 SOURCE.
5. CONTROL CIRCUIT GROUND.
6. 120/240 VAC 4 WIRE/FILS.
1. AMANA APPROVED REPLACEMENT PARTS MUST BE USED WHEN SERVICING.
2. TOTAL SYSTEM CHARGE IS MARKED ON CONDENSER NAMEPLATE
WHICH INCLUDES INDOOR SECTION AND 25 FEET OF INTERCONNECTING
.250 LIQUID LINE .20 OZ. PER FOOT
.375 LIQUID LINE .60 OZ. PER FOOT
.500 LIQUID LINE 1.30 OZ. PER FOOT
TOTAL CHARGE BLOCK MUST BE STAMPED BY THE DEALER WHO INSTALLS THE UNIT.
FOR MORE COMPLETE INSTRUCTIONS SEE INSTALLATION INSTRUCTIONS.
FACTORY SUPPLIED WIRING
LOW VOLTAGE
HIGH VOLTAGE
FIELD SUPPLIED WIRING
LOW VOLTAGE
HIGH VOLTAGE
COLOR CODE
1ST GROUP-COLOR
2ND GROUP-NUMBER
OR-ORANGE
YL-YELLOW
VT-VIOLET
BR-BROWN
GN-GREEN
BK-BLACK
BU-BLUE
RD-RED
TN-TAN
11141801 REV 0
LIQUID LINE, IF DIFFERENT LIQUID LINE LENGTH IS USED ADJUST PER
FOLLOWING CHART.
NOTE: THIS UNIT IS EQUIPPED WITH A COMPRESSOR CRANKCASE HEATER. DO NOT
OPERATE UNIT UNLESS HEATER HAS BEEN ENERGIZED FOR A MINIMUM OF FOUR HOURS.
NOTE: READ THE FOLLOWING NOTES BEFORE OPERATING OR SERVICING THIS UNIT.
ACCESSORIES:
WARNING:
WIRING TO UNIT MUST
BE PROPERLY POLARIZED
(AS APPLICABLE) AND
GROUNDED. DISCONNECT
POWER BEFORE SERVICING.
C
S
R
FAN
COM
CAPACITOR
OUTDOOR
FAN
MOTOR
VT20
BK27
BR11
CONTACTOR
(CC)
FIELD CONNECTIONS
POWER
SEE NOTES 1&6
GND
C/X
Y
BK1
WARNING:
WIRING TO UNIT MUST BE PROPERLY
POLARIZED (AS APPLICABLE) AND GROUNDED.
DISCONNECT POWER BEFORE SERVICING.
R2
R1
Y2
Y1
SHORT
CYCLE
PROTECTOR
(SCP)
RD10
RD10
BU
HIGH
PRESS.
CUTOUT
(HPC)
GND
YL
VT20
YL12
BK
1
BK
27
BR
11
YL
1
RD
10
VT
20
GY-GRAY
BK1
YL
LOW
PRESS.
CUTOUT
(LPC)
COMPRESSOR
T3
T2
T1
L3
L2
L1
VT
20
YL
12
BK
1
YL
1
L3
T3
L2
T1
T2
L1
CC3
CC2
CC1
C
R
S
COMP 3ø
R
S
C
OD
FAN
Y
CC
SCP
Y1
R1
R2
C/X
LPC
HPC
CAP
SEE
NOTE 5
7. ALTERNATE 3ø COMPRESSORS MAY LABEL TERMINALS AS
(C,S,R) OR (T1,T2,T3).

Table of Contents

Other manuals for Amana VCA

Related product manuals