EasyManua.ls Logo

Amana VCA - EHK05 A (4.8 KW Heater Kit) W;Bha-FA or BCA-TA

Amana VCA
243 pages
Print Icon
To Next Page IconTo Next Page
To Next Page IconTo Next Page
To Previous Page IconTo Previous Page
To Previous Page IconTo Previous Page
Loading...
211 Rev. 3
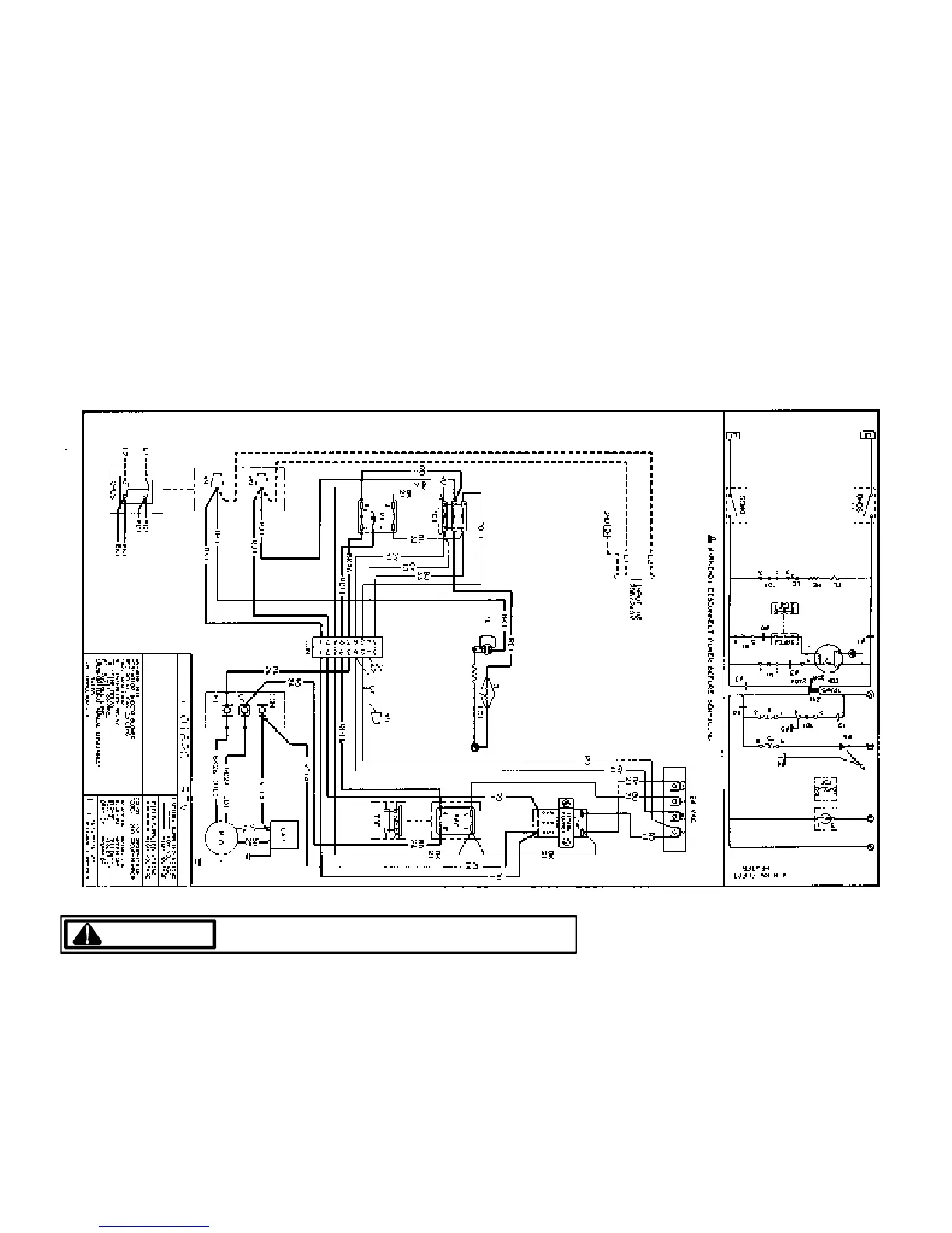
WIRING DIAGRAMS
TO AVOID POSSIBLE ELECTRICAL SHOCK, PERSONAL INJURY
,
OR DEATH, DISCONNECT THE POWER BEFORE SERVICING.
WARNING
EHK05A (4.8KW HEATER KIT) w/ BHA-FA or BCA-TA

Table of Contents

Other manuals for Amana VCA

Related product manuals