EasyManua.ls Logo

Amana VCA - Vca48-60 B2 A

Amana VCA
243 pages
Print Icon
To Next Page IconTo Next Page
To Next Page IconTo Next Page
To Previous Page IconTo Previous Page
To Previous Page IconTo Previous Page
Loading...
205 Rev. 3
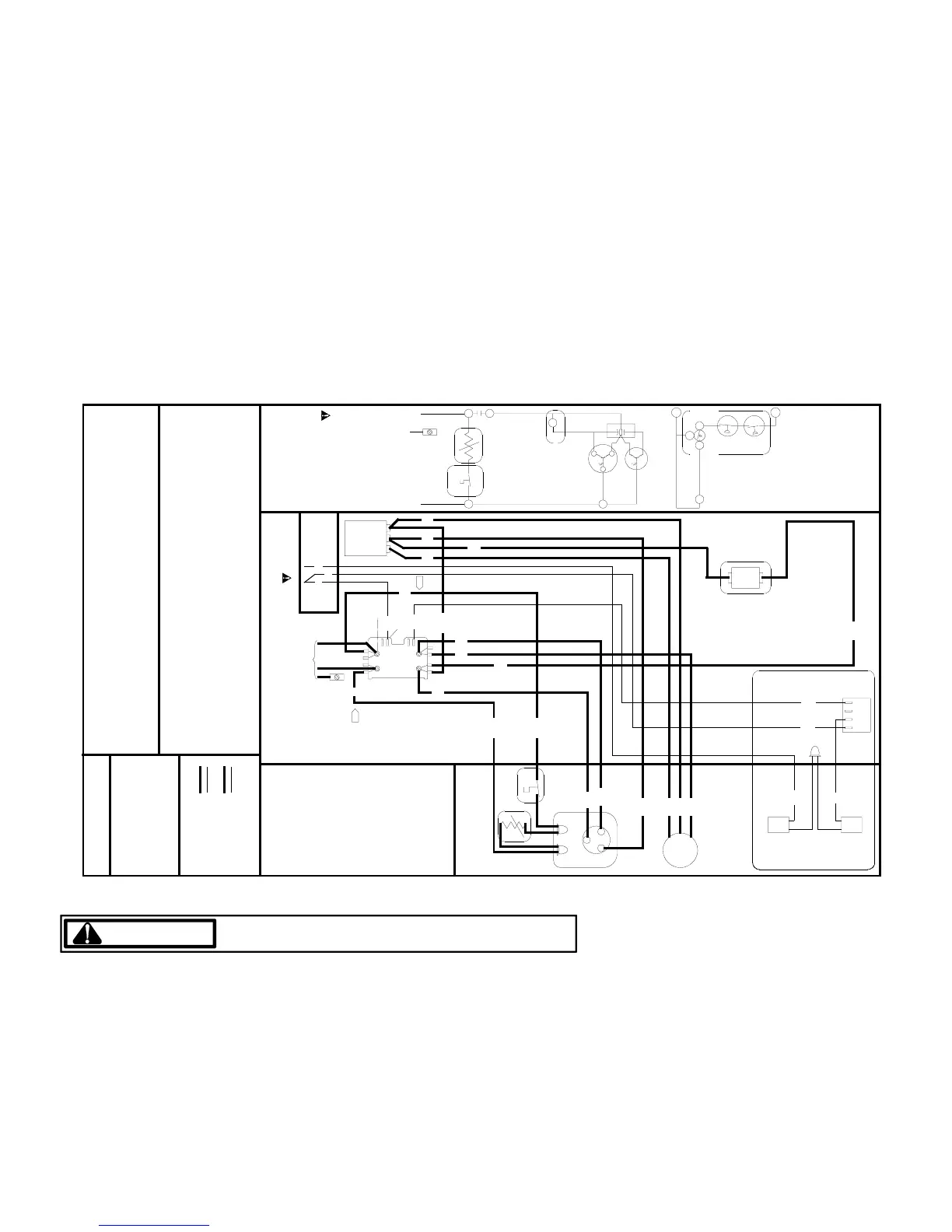
WIRING DIAGRAMS
TO AVOID POSSIBLE ELECTRICAL SHOCK, PERSONAL INJURY
,
OR DEATH, DISCONNECT THE POWER BEFORE SERVICING.
WARNING
VCA48-60B2A
NOTES
1. SEE ELECTRICAL INFORMATION ON UNIT NAMEPLATE. FIELD CONNECTIONS FOR
UNITS ARE TO BE MADE AT L1, L2 & EQUIPMENT GROUND SCREW.O
2. FOR FIELD CONNECTIONS SEE INSTALLATION INSTRUCTIONS.
3. TRANSFORMER N.E.C. CLASS 2, 24VAC OUTPUT, 20VA MINIMUM.
CANADIAN REQUIREMENTS: NOTES 4, 5, AND 6.
4. NEUTRAL, IF INPUT POWER DERIVED FROM 240/460 SOURCE.
5. CONTROL CIRCUIT GROUND.
6. 120/240 VAC 3 WIRE/FILS.
1. AMANA APPROVED REPLACEMENT PARTS MUST BE USED WHEN SERVICING.
2. TOTAL SYSTEM CHARGE IS MARKED ON CONDENSER NAMEPLATE
WHICH INCLUDES INDOOR SECTION AND 15 OR 25 FEET OF INTERCONNECTING
.250 LIQUID LINE .20 OZ. PER FOOT
.375 LIQUID LINE .60 OZ. PER FOOT
.500 LIQUID LINE 1.30 OZ. PER FOOT
TOTAL CHARGE BLOCK MUST BE STAMPED BY THE DEALER WHO INSTALLS THE UNIT
FOR MORE COMPLETE INSTRUCTIONS SEE INSTALLATION INSTRUCTIONS.
FACTORY SUPPLIED WIRING
LOW VOLTAGE
HIGH VOLTAGE
FIELD SUPPLIED WIRING
LOW VOLTAGE
HIGH VOLTAGE
COLOR CODE & LEGEND
1ST GROUP-COLOR
2ND GROUP-NUMBER
OR-ORANGE
YL-YELLOW
VT-VIOLET
BR-BROWN
GN-GREEN
BK-BLACK
BU-BLUE
RD-RED
TN-TAN
LIQUID LINE, IF DIFFERENT LIQUID LINE LENGTH IS USED ADJUST PER
FOLLOWING CHART.
READ THE FOLLOWING NOTES BEFORE OPERATING OR SERVICING THIS UNIT.
NOTE:
C
S
R
FAN
HERM
COM
CAPACITOR
OUTDOOR
(OD) FAN
MOTOR
VT20
BK27
BR11
L2
L1
T1
T2
CONTACTOR
(CC)
FIELD CONNECTIONS
1õ POWER
SEE NOTES 1&6
GND
BK1
WARNING:
WIRING TO UNIT MUST BE PROPERLY
POLARIZED (AS APPLICABLE) AND GROUNDED.
DISCONNECT POWER BEFORE SERVICING.
SEE
NOTE 5
RD10
BK1
RD10
YL1
YL
VT20
BK
27
YL
12
BR
11
RD
10
GY-GRAY
COMPRESSOR
VT
20
VT
20
YL12
BK15
OPT. OR FIELD
INSTALLED
CRANKCASE
HEATER
BK14
BK
15
BK
14
R2
R1
Y2
Y1
SHORT
CYCLE
PROT
(SCP)
BU
HIGH
PRESS.
CUTOUT
(HPC)
BK
1
YL
1
YL
LOW
PRESS.
CUTOUT
(LPC)
OPTIONAL
DISCHARGE
THERMOSTAT
T2
L2
L1
R
S
C
OD
COMP
CAP
F
H
C
T1
CC
FAN
GRD
CRKC
HTR
PTCR
DISCH
STAT
Y
CC
SCP
Y1
R1
R2
C/X
LPC
HPC
8
OPTIONAL OR
FIELD INSTALLED
PTCR
START
RD10
YL
12
WN-WIRE NUT
WN
BK1
8. CRANKCASE HEATER WIRES GOING FROM COMPRESSOR TO CONTACTOR MAY NOT BE
IDENTIFIED AS BK14 AND BK15.
8
RD
10
SEE
NOTE 4
WARNING
WIRING TO UNIT MUST
BE PROPERLY POLARIZED
(AS APPLICABLE) AND
GROUNDED. DISCONNECT
POWER BEFORE SERVICING.

Table of Contents

Other manuals for Amana VCA

Related product manuals