EasyManua.ls Logo

AMERITRON ALS-600 - Page 37

AMERITRON ALS-600
42 pages
Print Icon
To Next Page IconTo Next Page
To Next Page IconTo Next Page
To Previous Page IconTo Previous Page
To Previous Page IconTo Previous Page
Loading...
37
1
2
1
2
3
4
5
6
7
8
2
3
4
5
6
7
8
1
2
3
4
5
6
7
8
1
9
10
J106
J105
J104
J103
ALC
Bias
Board
••
3
412
115
6
7
8
9
10
J6 Power
Connector
Jack
S1 Power
ON/OFF
B1 FAN
SW1 Stby/Op
2
3
4
5
6
7
8
1
9
10
W401
W402
W403
W404
W405
W406
W407
W408
401 LED
Brd
J3 ALC
J4 RLY
J5 12V
C3
C4
C5
Gnd
W203
W201
50VDC
G
RFO
Gnd
Power
Amplifier
Board
W511
W502
RF Out
Gnd
SWR Detect
Board
Gnd
W511
W301
W302
W303
W304
W305
W306
W307
W308
W309
W311 W310
OH9 W313 W312W316
W318
T1
Output Filter
Board
TM1
M1a
M1b
-
+
-
+
••
Blu: To LED
Board Pin 8
Wht
Vio
Blu
Grn
Yel
Org
Red
Brn
Blk
Gry
Wht
Red
Grn
Wht
Blk
Red/Wht
Blu
Org
Yel
Wht
Blk
Blk
Blk
Blk
Red
Brn
Yel
Grn
Gry
Red/Blk
Red/Wht
Blk
Wht
Blu
Org
Blk
Wht
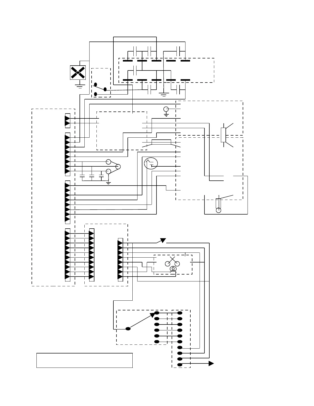
ALS-600 Wiring Diagram

Related product manuals