EasyManua.ls Logo

Ametek 3050-AM - Rear Panel Connections

Ametek 3050-AM
96 pages
To Next Page IconTo Next Page
To Next Page IconTo Next Page
To Previous Page IconTo Previous Page
To Previous Page IconTo Previous Page
Loading...
3-6 | 3050 AM Moisture Analyzer
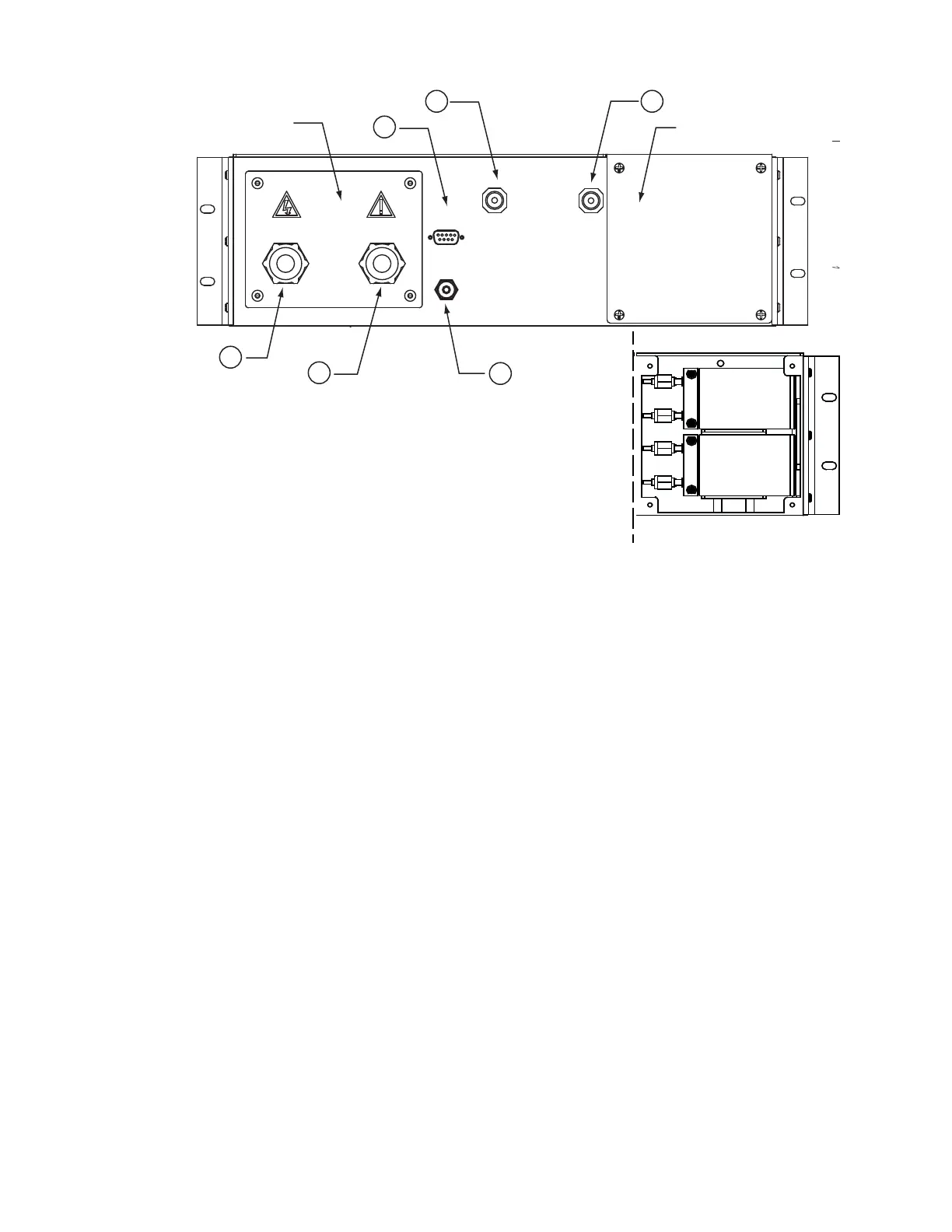
Rear Panel Connections and Interface Board
See Figures 3-2 and 3-3 for location of analyzer connections on rear panel
and interface board. Remove terminal cover to access interface board.
# Item Function
1 Power Conduit Cable gland for analyzer power cord.
2 Signal Conduit Cable gland for signal connections.
3 Instrument Air Fitting Input port for instrument air used to
operate internal diaphragm valves; 1/4-
inch Swagelok fitting.
4 RS-232 Serial Port User serial communications interface.
Serial wiring supplied by user. Observe
caution regarding use in hazardous loca-
tions.
5 Exhaust Fitting Vent port for cell exhaust; 1/4-inch male
VCR connector.
6 Sample Inlet Fitting Input port for sample gas; 1/4-inch male
VCR connector.
Figure 3-2.
Model 3050 AM rear panel
connections and inside of
dryer compartment.
C
D
B
POWER SIGNAL
RS-232
TERMINAL COVER
DRYER COMPARTMENT
COVER
Exhaust
Out
Atmospheric
Pressure
Instrument Air
70-100 PSIG
Sample In
20-50 PSIG
1
2
4
3
5 6

Table of Contents

Related product manuals