EasyManua.ls Logo

Assa Abloy Corbin Russwin Access 3 - Troubleshooting Guide

Assa Abloy Corbin Russwin Access 3
642 pages
Print Icon
To Next Page IconTo Next Page
To Next Page IconTo Next Page
To Previous Page IconTo Previous Page
To Previous Page IconTo Previous Page
Loading...
30
The warranty on Corbin Russwin products becomes void if the product is modified in any way, regardless of whether the modifications causes or contributes to any alleged defect. If a
Corbin Russwin product is modified it may no longer meet industry certification and quality control standards applicable to the original product and is no longer a genuine Corbin Russwin product.
Copyright © 1999-2018, ASSA ABLOY Access and Egress Hardware Group, Inc. All rights reserved. Reproduction in whole or in part without the express written permission of ASSA ABLOY Access
and Egress Hardware Group, Inc. is prohibited. Patent pending and/or patent www.assaabloydss.com/patents.
Troubleshooting Guide
UT5200 Parts Manual
Door Edge
Jamb Edge
Strike
Latchbolt
Door Edge
Jamb Edge
Strike
Latchbolt
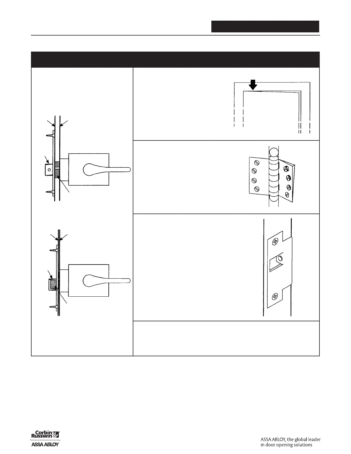
PROBLEM SOLUTION
1. Latchbolt does not engage or
binds in strike.
(Incorrect Positioning)
(Correct Positioning)
A. Make sure door and frame are plumb
and door is not binding in frame.
B. Are hinges tight? Fill holes if necessary,
or rehang door if screws will not hold.
C. Has door or frame warped or shifted?
Remove strike and adjust nylon stop screw
to compensate for this condition horizontally.
File top or bottom of latch hole to compensate
for vertical misalignment.
In extreme cases, you may need to shim,
or reposition strike.
D. Is door or frame sagging? If door and frame cannot be returned to plumb
relationship, planning or shaving door and repositioning or shimming strike
may help.

Table of Contents