EasyManua.ls Logo

Astoria 2GR - Page 67

Astoria 2GR
106 pages
Print Icon
To Next Page IconTo Next Page
To Next Page IconTo Next Page
To Previous Page IconTo Previous Page
To Previous Page IconTo Previous Page
Loading...
TECHNICIANS' manual
69 of 108
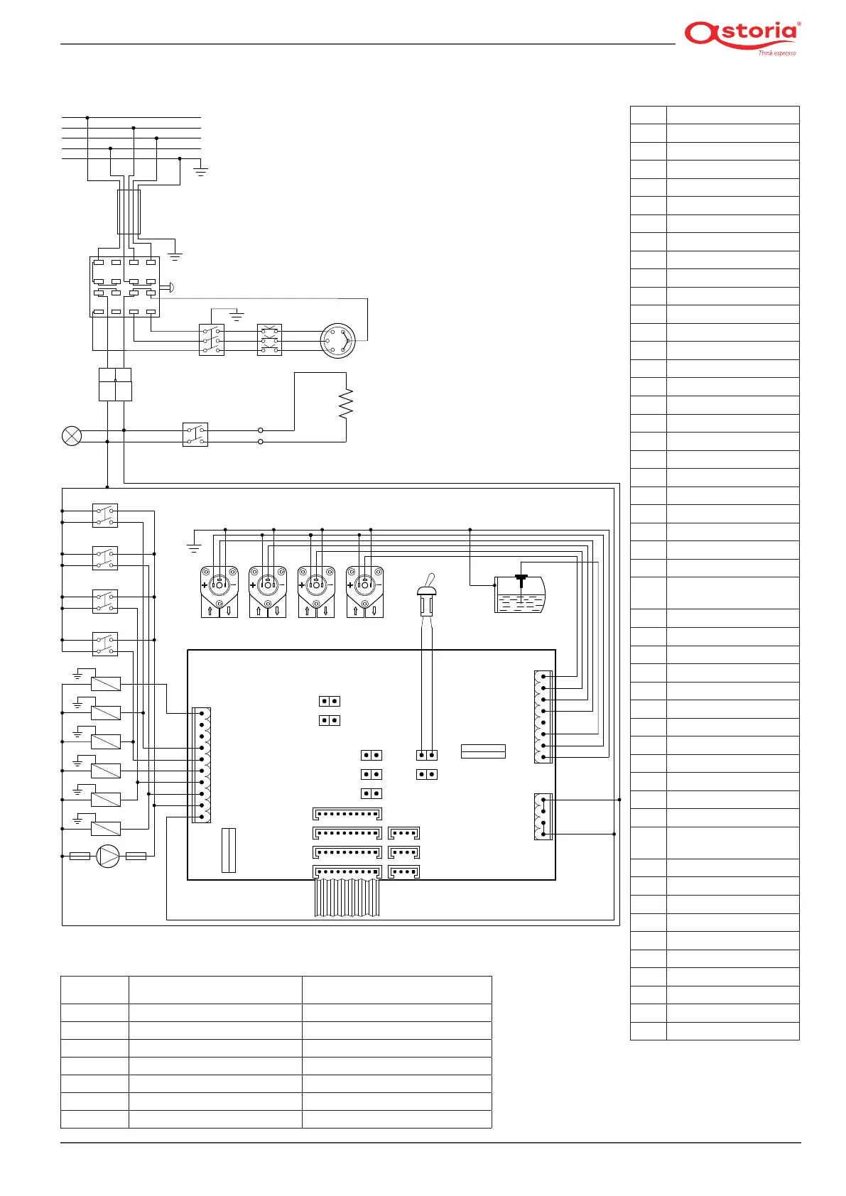
13.5.6 Wiring diagram code 18090016 - 18090017 - 18090028 - 18090029 *GICAR*
BI
White
BL
Blue
CAB
Power cable
CAL
Heating unit
CLS
Serial connector
CN1
Power supply
CN2
Low voltage connector
CN3
Steam outlet connector
CO
Power switch
CT
Power supply connector
CT1
PB panel connector GR1
CT2
PB panel connector GR2
CT3
PB panel connector GR3
CT4
PB panel connector GR4
CV1
Flow meter GR1
CV2
Flow meter GR2
CV3
Flow meter GR3
CV4
Flow meter GR4
EV1
GR1 solenoid valve
EV2
GR2 solenoid valve
EV3
GR3 solenoid valve
EV4
GR4 solenoid valve
EVC
Filling solenoid valve
EVT
Tea solenoid valve
F1
Motor pump fuse (500 mA)
F2
Inlet fuse (6.3 A)
FP1(*)
Motor pump fuse UL
(OPD) fuse
FP2(*)
230 V UL (OPD) fuse
GR
Grey
GV
Yellow-green
IC2
Eprom
IM1
Manual switch GR1
IM2
Manual switch GR2
IM3
Manual switch GR3
IM4
Manual switch GR4
IP
Programm. switch
IST
Cup warmer switch
LA
Indicator light
MA
Brown
MB
Pushbutton panel mem-
brane
MP
Motor pump
NE
Black
PR
Pressure switch
RE
Heating element
RO
Red
SA
Safety heating element
SL
Heating unit level probe
TE 1
Tea dose
TE 2
Not managed
VE
Green
JUMPER INSERTED NOT INSERTED
JP1 Serial connection enabled Serial connection disabled
JP2 Pre-infusion enabled Pre-infusion disabled
JP3 Programming enabled Programming disabled
JP4 Filling the heating unit with the pump Filling the heating unit without the pump
JP5 Conguration “W” Conguration “C”
JP6 Dispensing tea with the pump Dispensing tea without the pump
JP8 D control I/O Interface
CN2
CN1
CN3
F1
JP8
CT1
CT2
CT3
CT4
TE2
TE1
CLS
SL
NE
BL
NE
MA
MA
MA
MA
GV
RO
BL
VE
VE
VE
VE
VE
VE
CV4
CV3CV2CV1
IP
MB
RO
RO
RO
RO
RO
RO
RO
RO
BL
VE
BL
VE
BL
VE
BL
VE
BI
RO
F2
JP3
JP6
JP4
JP1
JP2
JP5
CT
SCT
LA
PR
SA
CO
RE
IST
R
S
T
N
MA
BL NE GR GV
CAB
MA
BL
IM1
IM2
IM3
IM4
CAL
EVT
EV1
EV4
EVC
EV3
EV2
MP
13 9 5
1
3
71115
16 12 8
4
2
610
14
FP1
FP2
OO
O
O
(
*
) Fuses for UL versions where
a plug with a capacity greater
than 30 A is installed

Table of Contents

Other manuals for Astoria 2GR

Related product manuals