EasyManua.ls Logo

Astoria 2GR - Aep Extractable Exchanger; Hydraulic Diagram

Astoria 2GR
106 pages
Print Icon
To Next Page IconTo Next Page
To Next Page IconTo Next Page
To Previous Page IconTo Previous Page
To Previous Page IconTo Previous Page
Loading...
TECHNICIANS' manual
89 of 108
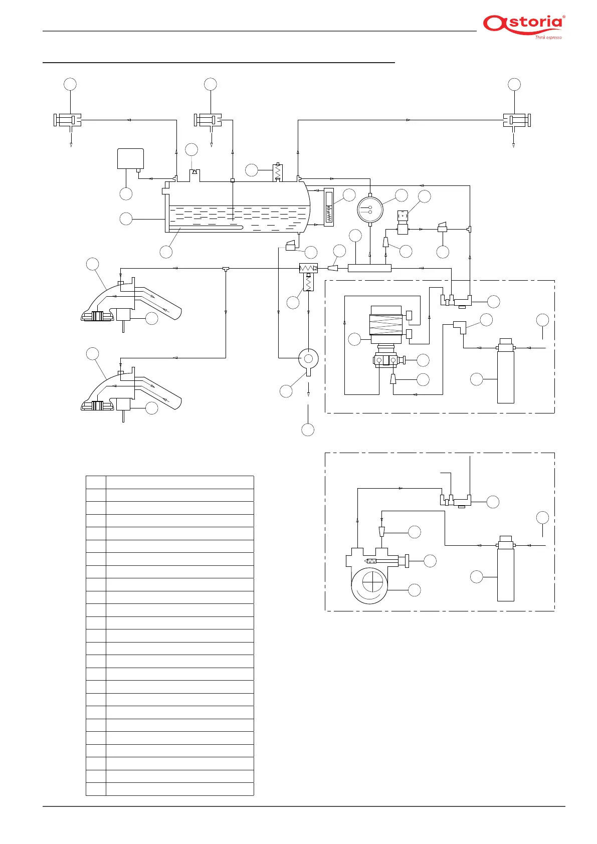
14.2 AEP EXTRACTABLE EXCHANGER hydraulic diagram
1
6
3
1
5
24
4
14
S
18
21
22
12
13
9
11
20
8
E
19
19
21
12
23
14
15
15
2
11
12
10
17
16
7
12
25
24
22
E
Internal motor pump
External motor pump
1 Steam valve
2 Hot water valve
3 Negative pressure valve
4 Safety valve
5 Pressure switch
6 Heating unit
7 Optical level
8 Pressure gauge
9 Automatic Water Entry Solenoid Valve
10 Heating unit heating element
11 Heating unit drain valve
12 Water inlet lter
13 Water dispenser
14 Dispensing group
15 Group solenoid valve
16 SCNR valve
17 Drain tray
18 Built-in motor pump
19 Manual water inlet valve
20 Water inlet connection
21 Pump pressure adjustment
22 Water lter/water softener
23 External motor pump
24 Water inlet
25 Drain

Table of Contents

Other manuals for Astoria 2GR

Related product manuals