EasyManua.ls Logo

Astoria 2GR - CTS SYSTEM Hydraulic Diagram - AEP

Astoria 2GR
106 pages
Print Icon
To Next Page IconTo Next Page
To Next Page IconTo Next Page
To Previous Page IconTo Previous Page
To Previous Page IconTo Previous Page
Loading...
TECHNICIANS' manual
91 of 108
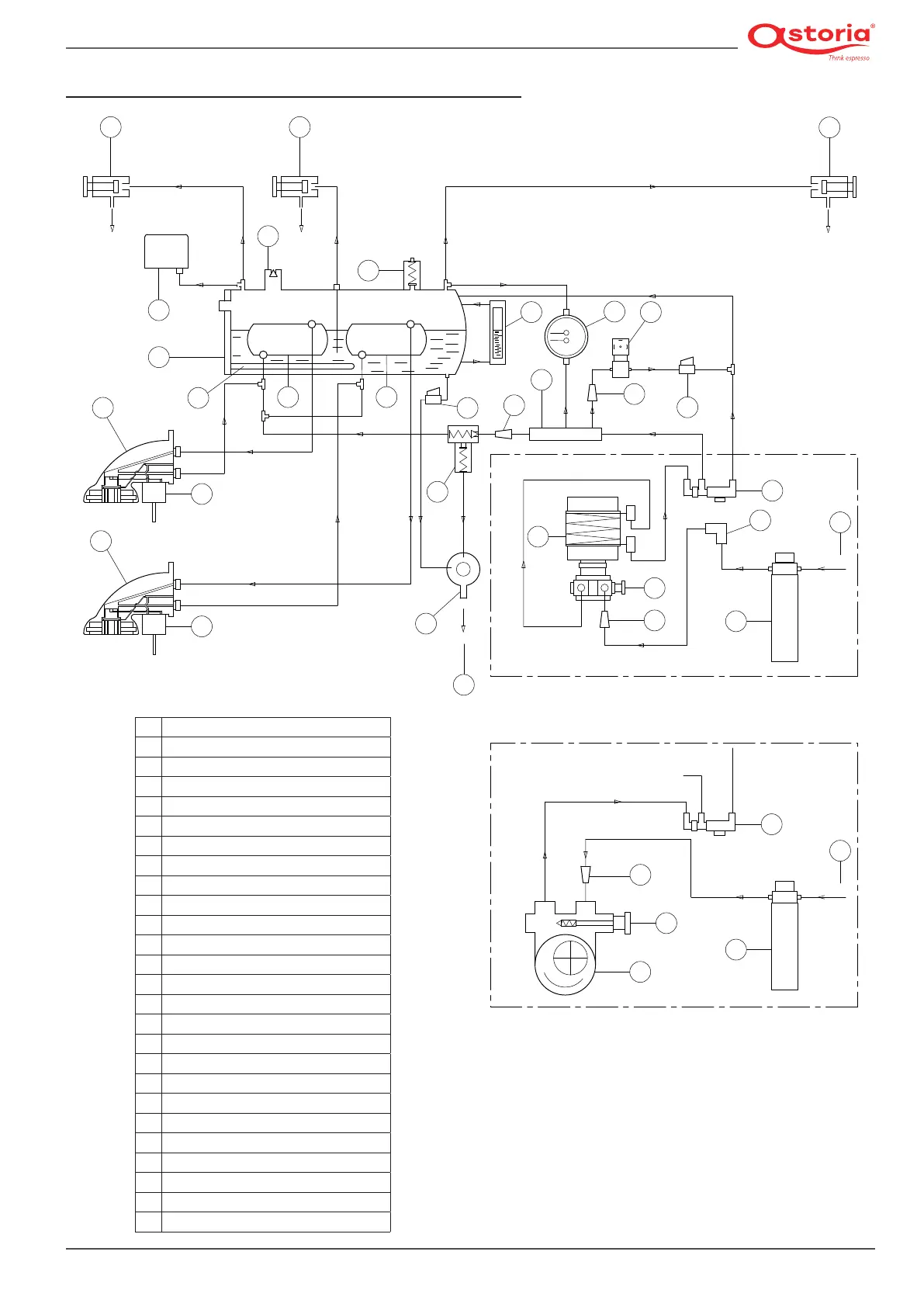
14.4 CTS SYSTEM hydraulic diagram - AEP
1
6
4
1
3
5
15
16
8
15
16
8
S
20
24
13
14
9
21
11
24
13
23
2
9
13
12
7
19
17
10
13
26
18
18
25
22
E
25
22
E
Internal motor pump
External motor pump
1 Steam valve
2 Hot water valve
3 Pressure switch
4 Negative pressure valve
5 Safety valve
6 Heating unit
7 Heating unit heating element
8 Heat exchanger
9 Heating unit drain valve
10 Optical level
11 Pressure gauge
12 Automatic Water Entry Solenoid Valve
13 Water inlet lter
14 Water dispenser
15 Dispensing group
16 Group solenoid valve
17 SCNR valve
18 Manual water inlet valve
19 Drain tray
20 Built-in motor pump
21 Water inlet connection
22 Water lter/water softener
23 External motor pump
24 Pump pressure adjustment
25 Water inlet
26 Drain

Table of Contents

Other manuals for Astoria 2GR

Related product manuals