EasyManua.ls Logo

Astoria 2GR - Hydraulic Diagrams; LEVER GROUP Hydraulic Diagram

Astoria 2GR
106 pages
Print Icon
To Next Page IconTo Next Page
To Next Page IconTo Next Page
To Previous Page IconTo Previous Page
To Previous Page IconTo Previous Page
Loading...
TECHNICIANS' manual
88 of 108
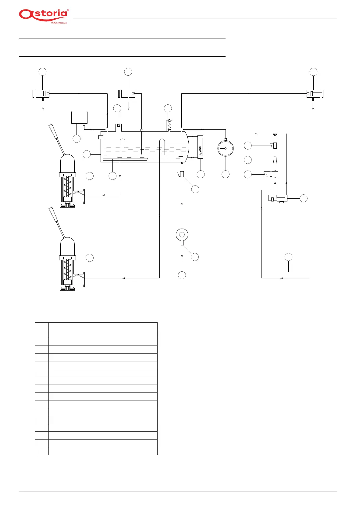
14. HYDRAULIC DIAGRAMS
14.1 LEVER GROUP hydraulic diagram
7
6
5
1
3
2
S
15
E
10
12
7
11
4
9
13
14
9
12
8
16
17
1 Steam valve
2 Hot water valve
3 Negative pressure valve
4 Safety valve
5 Pressure switch
6 Heating unit
7 Dispensing group
8 Heating unit heating element
9 Valve
10 Optical level
11 Pressure gauge
12 Water inlet lter
13 Automatic Water Entry solenoid valve (optional)
14 Manual water inlet valve
15 Drain tray
16 Drain
17 Water inlet

Table of Contents

Other manuals for Astoria 2GR

Related product manuals