EasyManua.ls Logo

Astoria 2GR - Page 85

Astoria 2GR
106 pages
Print Icon
To Next Page IconTo Next Page
To Next Page IconTo Next Page
To Previous Page IconTo Previous Page
To Previous Page IconTo Previous Page
Loading...
TECHNICIANS' manual
87 of 108
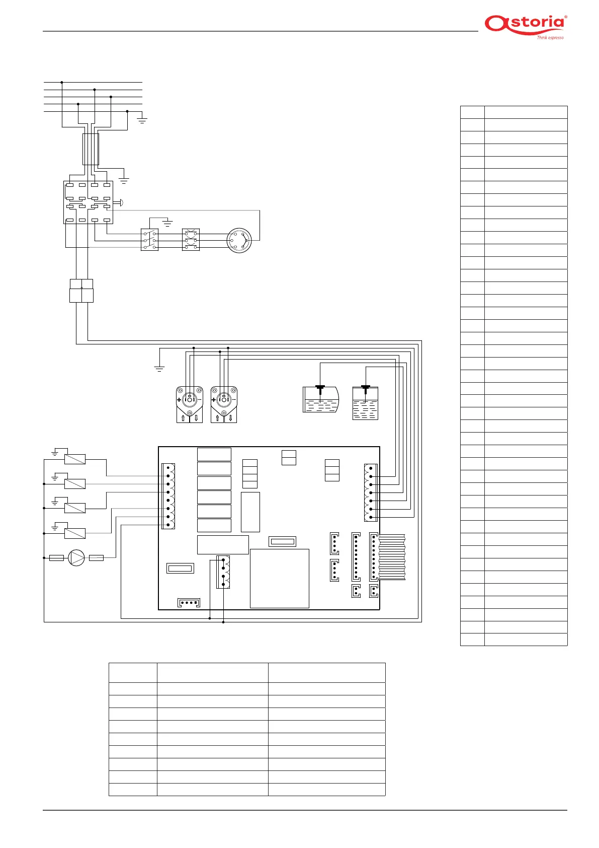
13.5.20 Wiring diagram code 18090130 - 18090146
CN7
CN8 CN9
MB
CN5 JP3
CN1
JP4
CN3
F1
F2
JP10
GV
CV2CV1
RL2
RL3
RL4
RL5
RL6
RL7
RL8
RL1
JP5
JP6
JP2
JP1
JP8
JP7
JP11
JP12
JP9
CN2
CT
PR
SA
CO
RE
R
S
T
N
MA
BL NE GR GV
CAB
MA
BL
SL SS
CAL
SER
EV1
EVT
EVC
EV2
MP
TRF1
13 9 5
1
3
71115
16 12 8
4
2
610
14
FP1FP2
O
O
BI White
BL Blue
CAB Power cable
CAL Heating unit
CN1 Steam outlet connector
CN2 Power supply connector
CN3 Programming connector
CN5 Heating unit NTC probe
CN7 Low voltage connector
CN8 GR2 pushbutton panel connector
CN9 GR1 pushbutton panel connector
CO Power switch
CT Power supply connector
CV1 GR1 volumetric counter
CV2 GR2 volumetric counter
EV1 GR1 solenoid valve
EV2 GR2 solenoid valve
EVC Heating unit lling solenoid valve
EVT Tea solenoid valve
F1 Inlet fuse (10 A)
F2 Motor pump fuse (500 mA)
FP1(*) Motor pump UL (OPD) fuse
FP2(*) UL (OPD) Fuse for 230 V
GR Grey
GV Yellow-green
MA Brown
MB Pushbutton panel membrane
MP Motor pump
NE Black
PR Pressure switch
RE Heating element
RL3 GR1 solenoid valve relay
RL4 Tea solenoid valve relay
RL5 Heating unit solenoid valve relay
RL7 GR2 solenoid valve relay
RL8 Pump relay
RO Red
SA Safety heating element
SE Tank
SL Heating unit level probe
SS Tank level probe
TRF1 Transformer
VE Green
(
*
) Fuses for UL versions where
a plug with
capacity greater than 30 A is installed
MOVABLE
JUMPER
INSERTED NOT INSERTED
JP1 RS232 serial port enabled RS232 serial port disabled
JP2 Pre-infusion enabled Pre-infusion disabled
JP4 Filling the heating unit with the pump Filling the heating unit without the pump
JP6 Dispensing tea with the pump Dispensing tea without the pump
JP7 Continuous function enabled Continuous function disabled
JP8 Not used
JP9 Temperature control enabled Temperature control disabled
JP11 Hysteresis at 2°C Hysteresis at 4°C
JP12 Water supply from the tank Water supply from the mains

Table of Contents

Other manuals for Astoria 2GR

Related product manuals