EasyManua.ls Logo

Atlantic alfea extensa + - Page 41

Atlantic alfea extensa +
92 pages
Print Icon
To Next Page IconTo Next Page
To Next Page IconTo Next Page
To Previous Page IconTo Previous Page
To Previous Page IconTo Previous Page
Loading...
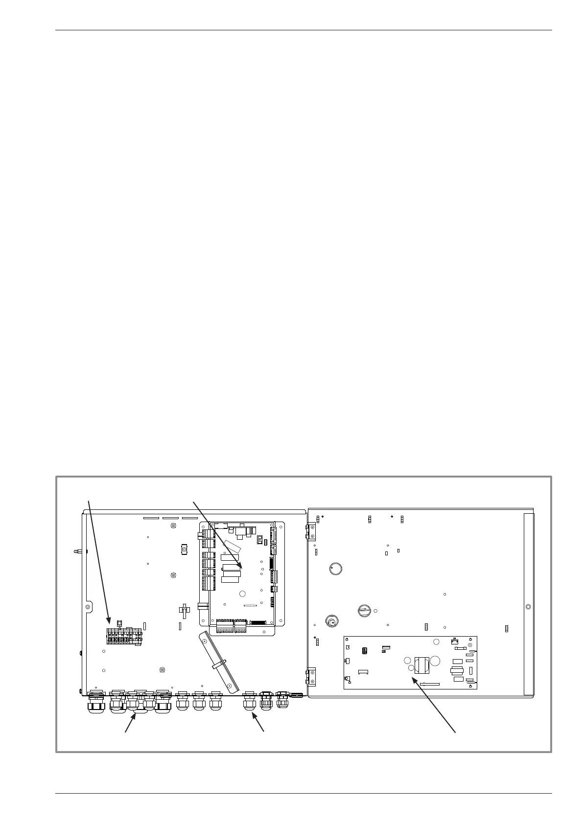
gure 39 - Access to hydraulic model electric box and description
HP regulator
Cable grommet (power)
Interface card
Cable grommet (sensors)
Terminal blocks
Installation and operation manual "1734 - EN" - 41 -
Heat pump air/water split 1 service alféa extensa +

Table of Contents

Related product manuals