EasyManua.ls Logo

Atlantic alfea extensa + - Page 42

Atlantic alfea extensa +
92 pages
Print Icon
To Next Page IconTo Next Page
To Next Page IconTo Next Page
To Previous Page IconTo Previous Page
To Previous Page IconTo Previous Page
Loading...
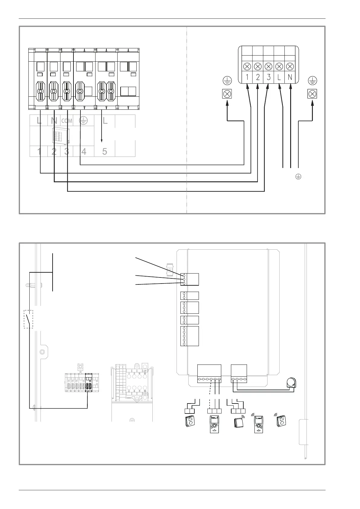
gure 40 - Connection to terminal block and power relays
gure 41 - Connections to the heat pump regulator (accessories and options)
L
N
1 2 3
4 5 6
Outdoor unit
Hydraulic unit
Electricity supply
230 V
Red
Blue
Brown
Green / yellow
Interconnection between
the outdoor unit and the hydraulic unit
External component
contact *
EX1
EX2
EX3
X86
L
X84
X11
654
5
6
M B9
1
12 1 3 2
654
13 2
Power shedding or EJP
(peak day removal)
Tariffs, peak times/off-peak times,
day / night
External fault
** Room
thermostat
T55
** Room
thermostat
radio T58
Outdoor
sensor
** Room
control unit
T75
** Room control
unit radio
T78
External component
contact*
(faults, load
shedder, power meter)
or
or
or
* If the control device does not provide a potential-free contact,
the contact must be relayed to create equivalent wiring.
In all cases, please refer to the instruction manuals for the external
components (load shedder, power meters) to create the wiring.
** Option
T75 : The connection of terminal 3 of the room control unit T75 is
not mandatory (lighting of the room control unit.
Installation and operation manual "1734 - EN"
Heat pump air/water split 1 service alféa extensa +
- 42 -

Table of Contents

Related product manuals