EasyManua.ls Logo

Austroflamm Ruby - Firebox Door Adjustment

Austroflamm Ruby
74 pages
Print Icon
To Next Page IconTo Next Page
To Next Page IconTo Next Page
To Previous Page IconTo Previous Page
To Previous Page IconTo Previous Page
Loading...
Operating manual Ruby EN 13 | Adjustments
51
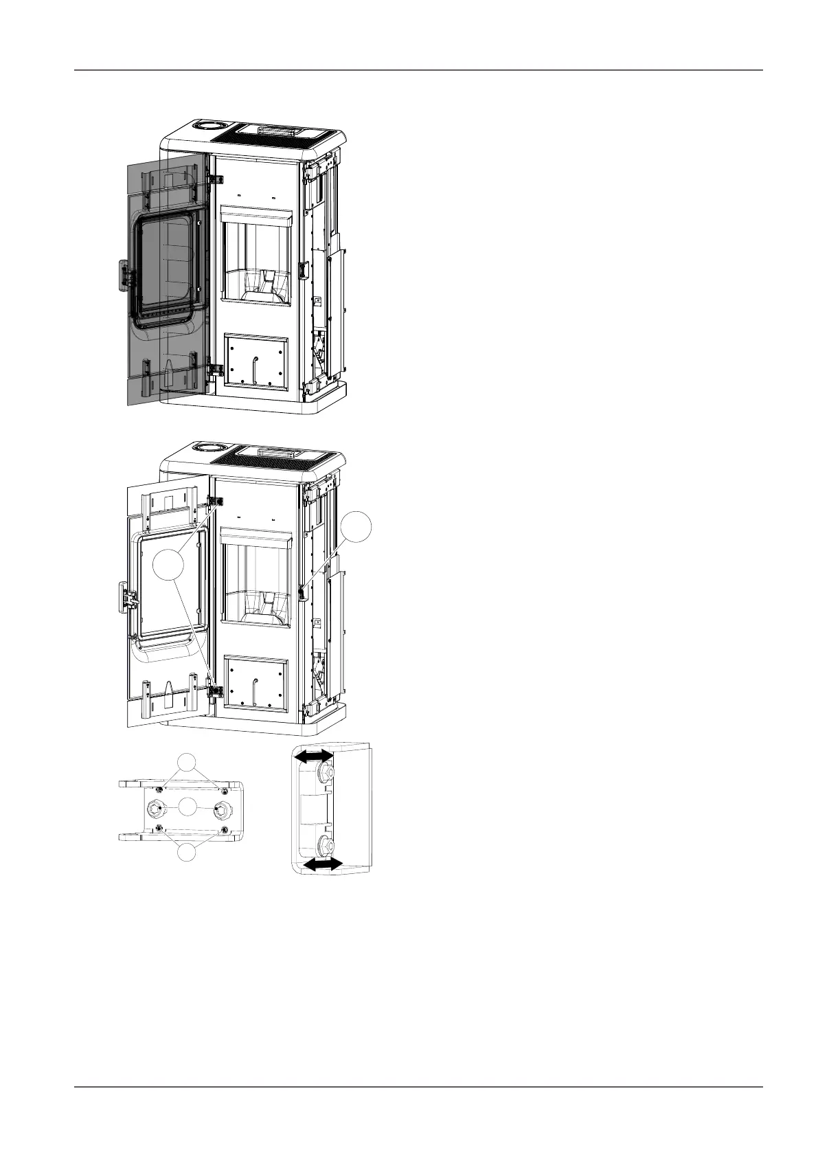
13.19 Adjusting the firebox door
Fig.66: Opening the door
1) Open the door.
1
2
B
B
A
Fig.67: Adjusting the firebox door
2) The hinges (1) can be adjusted with the marked
screws A + B.
ð A: left/right
ð B: forwards/backwards
3) The snap (2) can be adjusted forwards and backwards
at the springs.

Table of Contents

Other manuals for Austroflamm Ruby

Related product manuals