EasyManua.ls Logo

Automatic Products SNACKSHOP 113 - Tron II Style

Automatic Products SNACKSHOP 113
57 pages
Print Icon
To Next Page IconTo Next Page
To Next Page IconTo Next Page
To Previous Page IconTo Previous Page
To Previous Page IconTo Previous Page
Loading...
tron II style 113
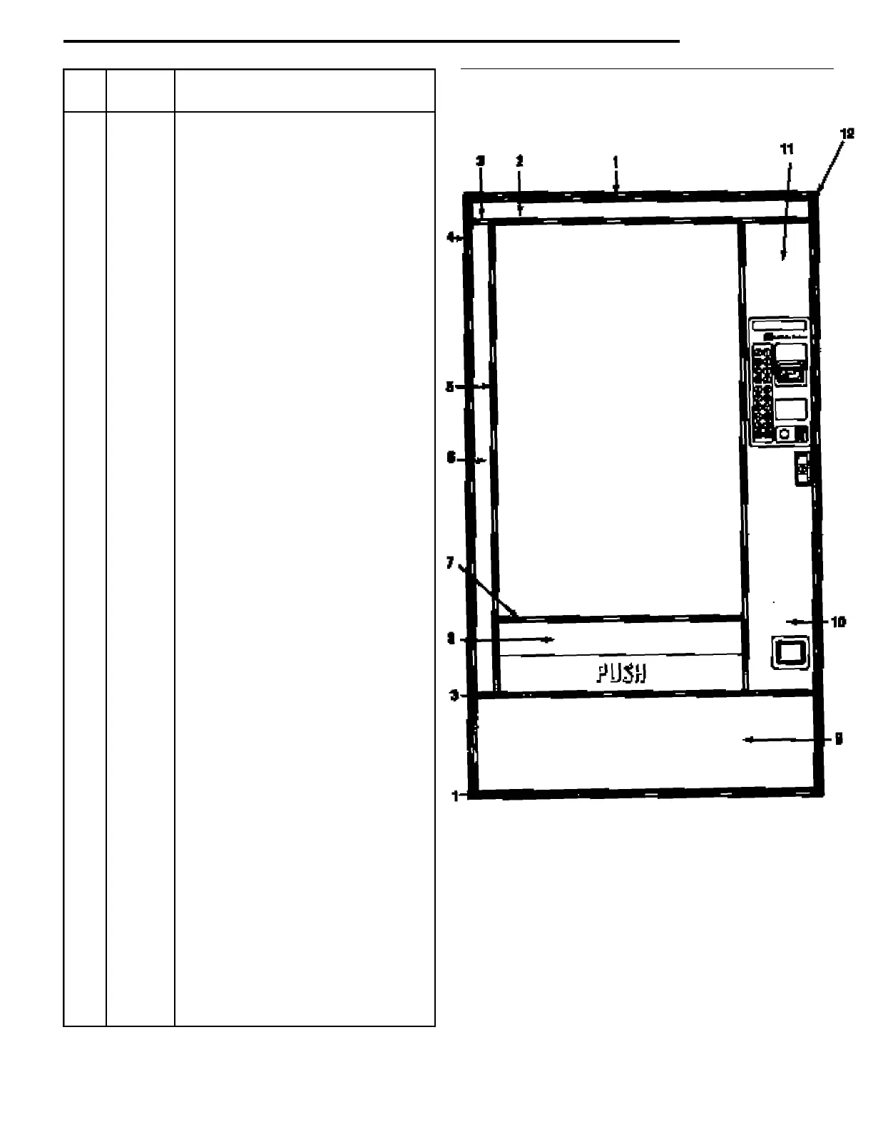
Item
No. Part No. Description
1 340055-9 Trim Horizontal, Top & Bottom, Black.
2 201417-2 Cover Up Plate, Galvanized.
440312-1 Top Insert, Black.
3 660231-3 Trim, Horizontal w/Black Stripe.
4 340057-2 Trim, Outside Vertical, Left or Right, Black.
5 340058-8 Trim, Inside Vertical, Left or Right, Black.
6 202059-16 L S V P Dove Gray Tron.
7 340058 Trim, Horizontal, Window.
8 201356-34 Delivery Tray Panel, Sterling Royce.
9 200296-9 Panel Lower Horizontal, Dove Gray, Tron.
10 202061-14 R S V P Dove Gray, Tron, Lower.
11 202060-16 Panel, Right Side Vertical - Upper. Dove Gray.
12 600600 Door Only. Specify Color.
Item
No. Part No. Description
42

Related product manuals