EasyManua.ls Logo

Azbil AUR355 - Fixed Length Random Data Read Command (RU Command)

Azbil AUR355
60 pages
Print Icon
To Next Page IconTo Next Page
To Next Page IconTo Next Page
To Previous Page IconTo Previous Page
To Previous Page IconTo Previous Page
Loading...
22
Chapter 4. Communication
Fixed length random data read command (RU command)
This command reads random (discontinuous) data words in two-byte units.
z
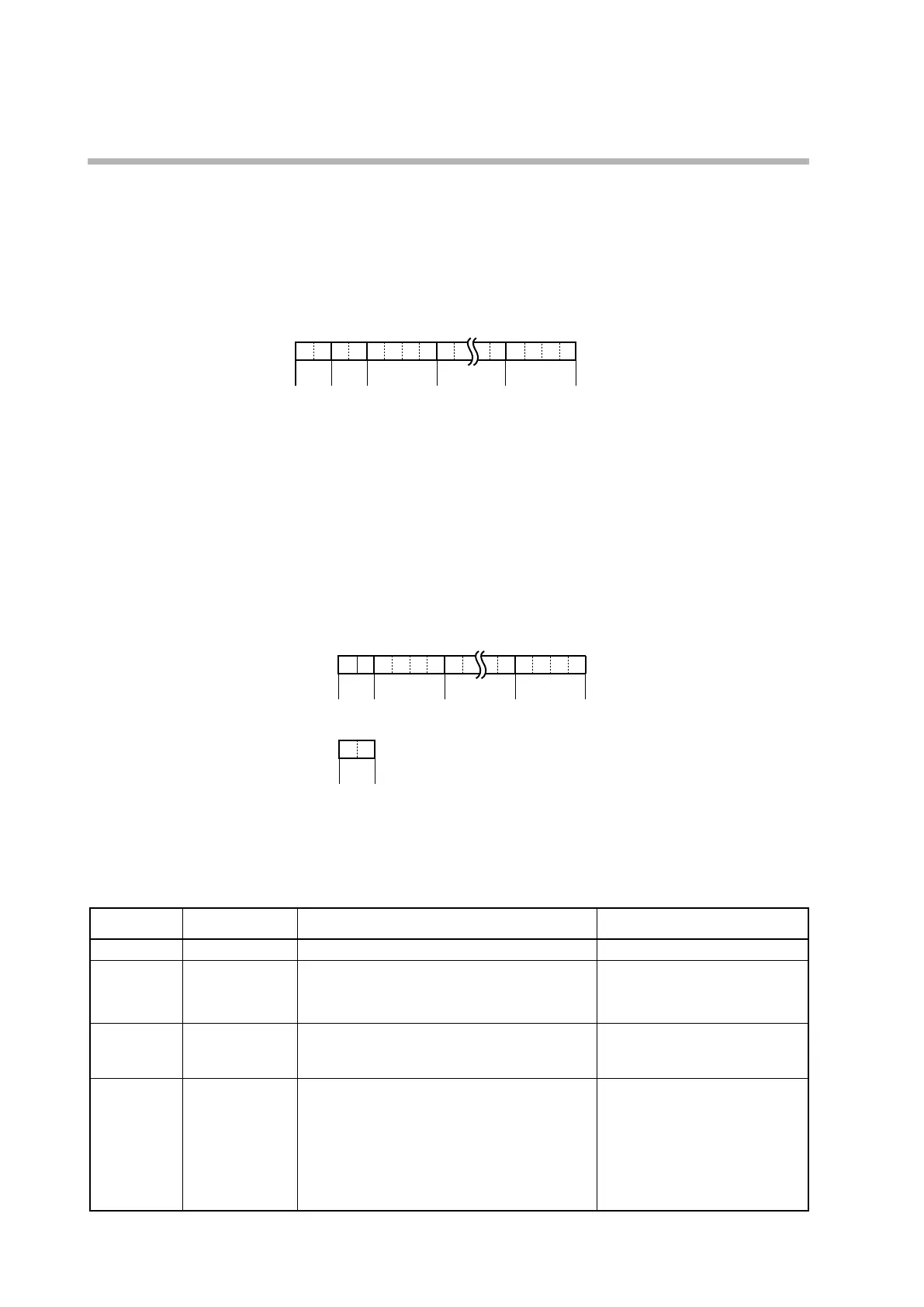
Command message
The data addresses (four hexadecimal digits each) of the data words to read are sent
in the specified order.
0 0
R U
(1) Command
(2) Subaddress, xed at “00”
(3) Address 1
(4) Address 2 to (n−1)
(5) Address n
(5)(1) (2) (3) (4)
z
Response message
If the command is successful, the Normal end code (two decimal digits) is returned
with the specified number of data words (four hexadecimal digits × number of data
words to read) appended. If there was an error, the Error end code (two decimal
digits) is returned without any read data appended.
Normal end
Abnormal end
X
(1)
X
The end code (error) is entered in place of XX.
(1) End code
(2) Data 1
(3) Data 2 to (n−1)
(4) Data n
0
(1)
0
(2) (3) (4)
z
End codes
End code Description Condition Operation
00 (Normal) Normal end*
The transmitted message was normal. The value that was read is returned.
99 (Error) Undefined
command
The first two characters in the application layer
were an undefined command.
The subaddress was not 00.
Only the end code is returned (no
data is appended).
40 (Error) Error in the
number of data
words
The number of data words was greater than the
number of accessible data words.
Only the end code is returned (no
data is appended).
41 (Error) Data address error Only if all data addresses in the transmitted
message meet the following conditions:
A character other than 0H–FH was included in
the data address.
The data address was not specified.
The data address was 255 or lower.
Only the end code is returned (no
data is appended).
* If a data address causes the data address error, “0” is returned as the data from the abnormal address.

Table of Contents

Other manuals for Azbil AUR355

Related product manuals