EasyManua.ls Logo

Beijer Electronics BFI-H3 - Physical Dimensions Ip55

Beijer Electronics BFI-H3
32 pages
Print Icon
To Next Page IconTo Next Page
To Next Page IconTo Next Page
To Previous Page IconTo Previous Page
To Previous Page IconTo Previous Page
Loading...
Beijer Electronics Frequency Inverter BFI-H3 KI00363D 2021-07
www.beijerelectronics.com 4 (32)
IP66 drives are fitted with a movable gland plate containing two cable entry holes. Please take
care when drilling to avoid any particles within the BFI.
Holes and recommended glands are listed in table below. The motor cable does not have to be
attached to the drive with an EMC-gland.
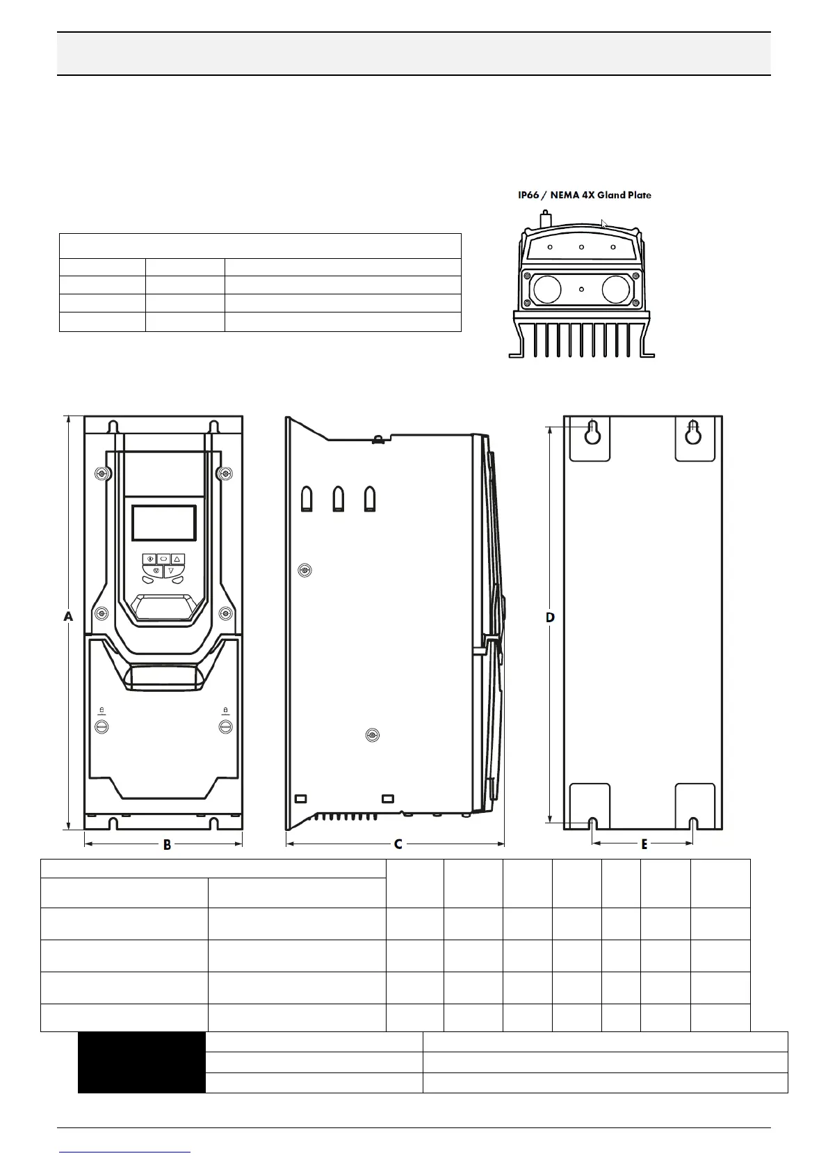
4.2 Physical dimensions IP55
BFI-H3-IP55
Drive
size
A
Height
[mm]
D
[mm]
Weight
[kg]
3 x 230 V
3 x 400 V
0300 0460 [ 7,5-11 kW]
0300 0460 [ 15-22 kW]
4
450
428
12
0610 - 0900 [ 1522 kW]
0610 0900 [ 3045 kW]
5
540
515
23
1100 1500 [ 3037 kW]
1100 1800 [ 5590 kW]
6
865
830
55
1800 2480 [ 4575 kW]
2020 3020 [110160 kW]
7
1280
1245
89
NOTE
Mounting bolts
Size 4 and 5: 4 x M8; Size 6 and 7: 4 x M10
Control Terminal, Required Torque
0.5 Nm.
Power Terminal, Required Torque
Size 4: 2 Nm; Size 5: 4 Nm Size 6 and 7: 15 Nm.
IP55 Drives do not have any predrilled gland holes for cable inlet.
Cable Gland, IP66 Hole Size & recommended glands
Frame size
Hole sizes
Recommended PG Gland
Size 1
2 x 22 mm
PG16 (correspond to M20)
Size 2 & 3
2 x 27 mm
PG21 (correspond to M25)
Size 4
2 x 37 mm
PG29

Related product manuals