EasyManua.ls Logo

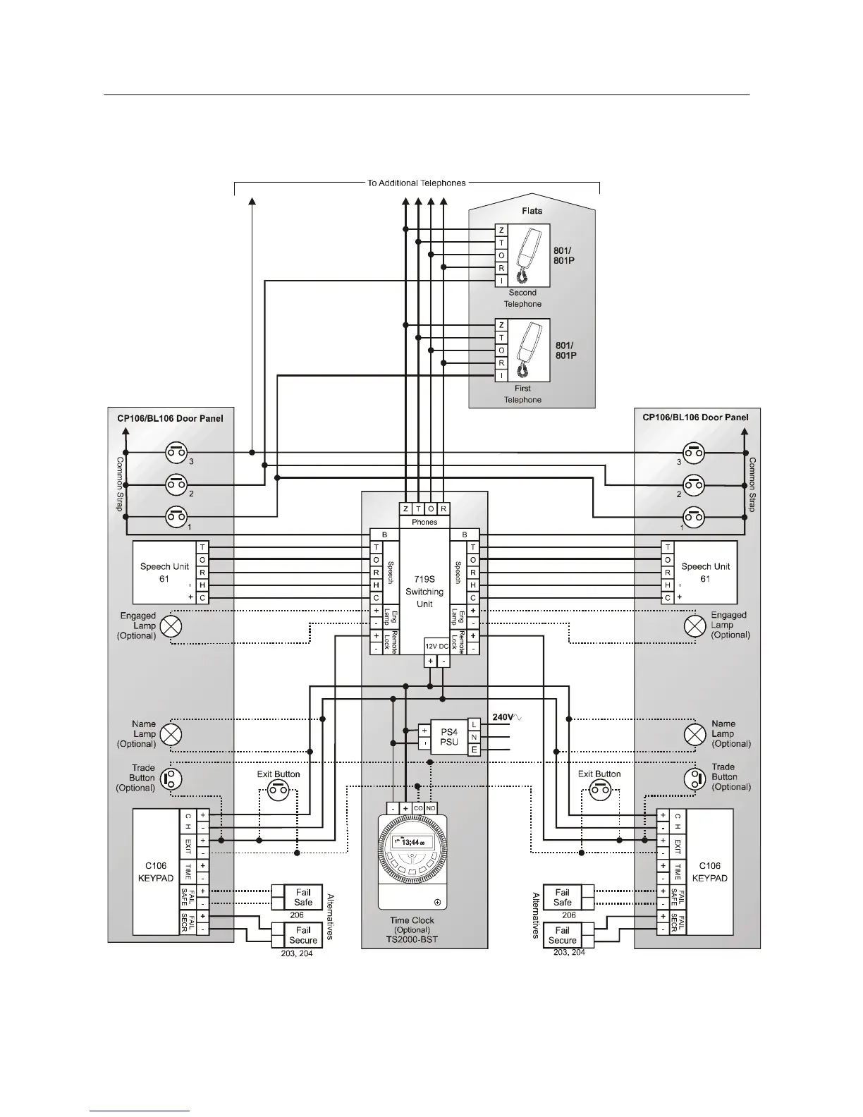
Bell System CS106 - 2 Door System Wiring Diagram

Default Icon
48 pages
Print Icon
To Next Page IconTo Next Page
To Next Page IconTo Next Page
To Previous Page IconTo Previous Page
To Previous Page IconTo Previous Page
Loading...
CS106/BL106 Combined Door Entry and Coded Access
46
Wiring Diagram - 2 Door System with the C106