EasyManua.ls Logo

BendPak HD-7W - Page 34

Default Icon
92 pages
Print Icon
To Next Page IconTo Next Page
To Next Page IconTo Next Page
To Previous Page IconTo Previous Page
To Previous Page IconTo Previous Page
Loading...
HD-7P / HD-7W Four-Post Lifts 34 P/N 5900041Rev. M July 2019
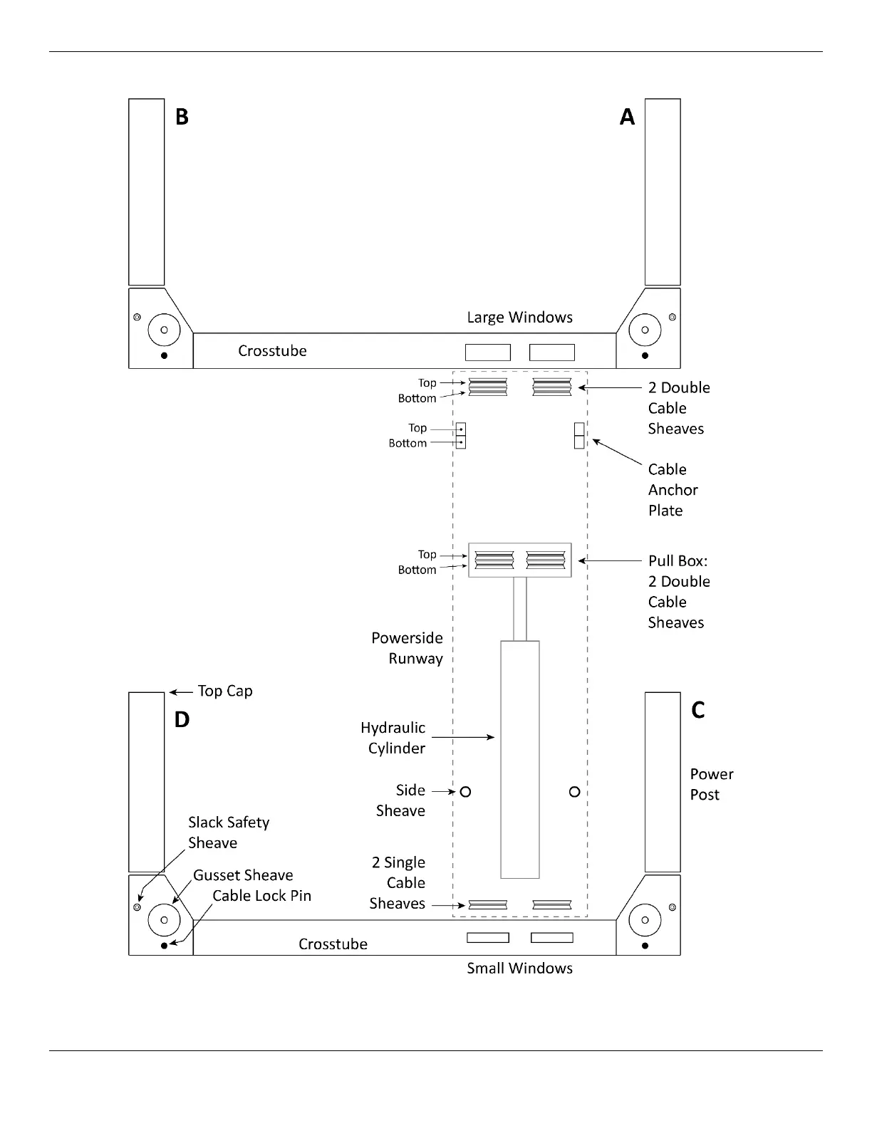
The following drawing shows the components involved in routing the Lifting Cables.
Not necessarily to scale. Not all components shown.

Other manuals for BendPak HD-7W

Related product manuals