EasyManua.ls Logo

BendPak HD-7W - Specifications

Default Icon
92 pages
Print Icon
To Next Page IconTo Next Page
To Next Page IconTo Next Page
To Previous Page IconTo Previous Page
To Previous Page IconTo Previous Page
Loading...
HD-7P / HD-7W Four-Post Lifts 8 P/N 5900041Rev. M July 2019
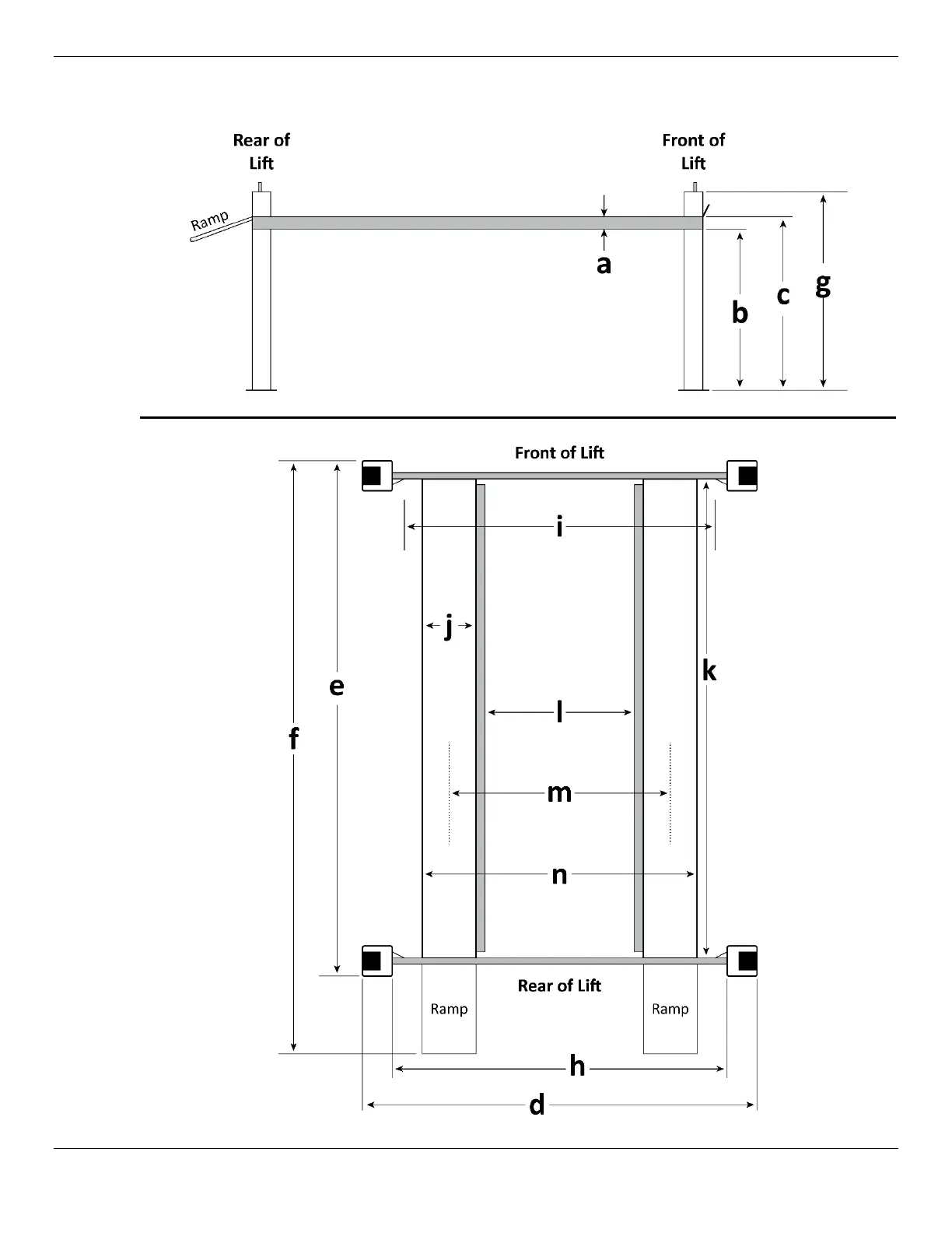
Specifications

Other manuals for BendPak HD-7W

Related product manuals