EasyManua.ls Logo

BigDog trooper - Mower Blade Maintenance

BigDog trooper
49 pages
Print Icon
To Next Page IconTo Next Page
To Next Page IconTo Next Page
To Previous Page IconTo Previous Page
To Previous Page IconTo Previous Page
Loading...
REV A 6-2 122832
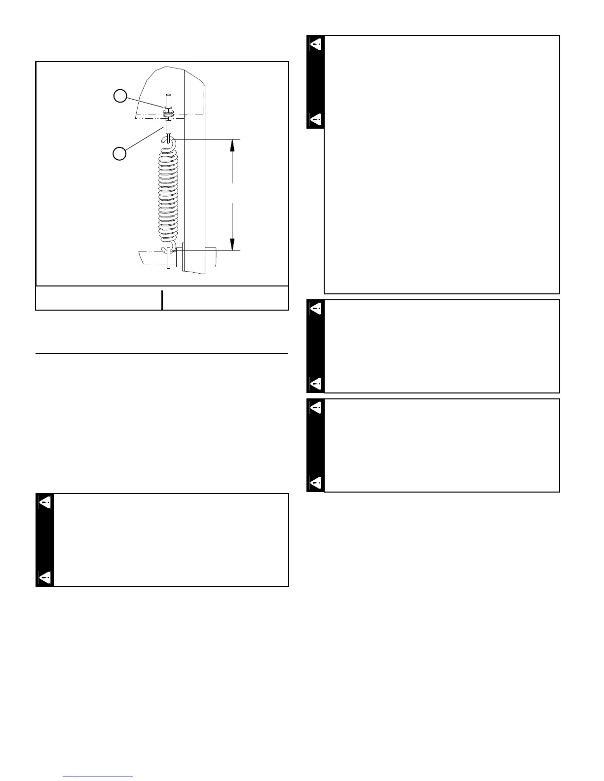
of the other hook. Tighten the jam nut on the other side once
the distance is set. Figure 6-4
Blades
Mower blade maintenance
Refer to the Mower blade replacement section for blade
removal and installation.
Check the mower blades daily as they are the key to power
efficiency and well groomed turf. Keep the blades sharp. A
dull blade will tear rather than cut the grass, leaving a brown
ragged top on the grass within a few hours. A dull blade also
requires more power from the engine.
Replace any blade which is bent, cracked or broken.
Sharpen the blades on a grinder following pattern as
shown (Figure 6-5). Touch-up sharpening can be done with a
file
After grinding the blades, check for balance. Blade balanc-
ing can be done by placing the blade on an inverted line
punch or 5/8" bolt. A commercial balancing tool is also avail-
able through most hardware supply stores.
The blade should not lean or tilt. When spinning the blade
slowly it should not wobble. Balance the blade before rein-
stalling.
A. Nut B. Eyebolt
Figure 6-4
Never attempt to straighten a bent blade by heating,
or weld a cracked or broken blade as the blade may
break and cause serious injury. Replace worn or
damaged blades.
A
B
8.4” ± .12”
WARNING
Repairs or maintenance requiring engine power
should be performed by trained maintenance per-
sonnel only.
Unless specifically required, DO NOT have the
engine running when servicing or making adjust-
ments to the mower.
Park the mower on level ground
Disengage the deck clutch.
Place the steering control levers in the park
brake position.
Lower the deck.
Stop the engine.
Remove the ignition key.
Disconnect the negative battery cable.
Block up mower when you must work under
it.
Always check for blade damage if mower strikes a
rock, branch or other foreign object during mowing!
Always wear adequate eye protection when grinding
mower blades.
Mower blades are sharp and can cut. Wrap the
blade(s) or wear gloves and use extra caution when
servicing them.
WARNING
WARNING
WARNING

Related product manuals