EasyManua.ls Logo

Bitzer OS.85 series - Page 65

Bitzer OS.85 series
108 pages
Print Icon
To Next Page IconTo Next Page
To Next Page IconTo Next Page
To Previous Page IconTo Previous Page
To Previous Page IconTo Previous Page
Loading...
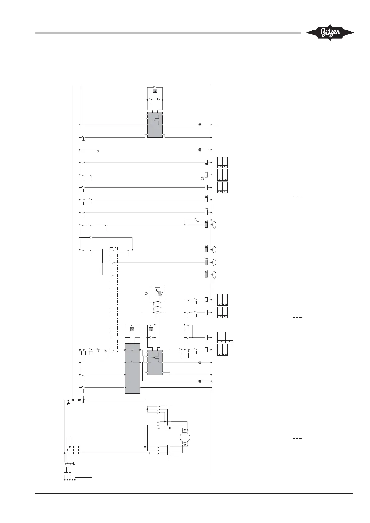
65SH-510-1
4-stufige Leistungsregelung
optionale Ausführung mit OFC
4-step capacity control
optional version with OFC
Régulation de puissance à 4 etages
version optionale avec OFC
Relais batteur ajustable 10 s / 10 s,
voir aussi chapitre 2.6 et 2.7
Armoire électrique
Les options sont signalées par des lignes
hachurées.
Fonctionnement ECO (option), contrôle de
niveau d’huile et des chauffage voir page 68.
Légende voir pages 60 et 61.
Adjustable time pulse relais 10 s / 10 s,
see also chapter 2.6 and 2.7
Switch board
Options are indicated by dashed lines.
ECO operation (option), oil level switch
and heater see page 68.
For legend refer to pages 60 and 61.
Einstellbares Zeittakt-Relais 10 s / 10 s,
siehe auch Kapitel 2.6 und 2.7
Schaltschrank
Optionen sind mit gestrichelten Linien
dargestellt.
ECO-Betrieb (Option), Ölniveau-Über-
wachung und Heizung siehe Seite 68.
Legende siehe Seiten 60 und 61.
4321 876
5
13
1211
109
14
15
16
17
18 19 20
21 22
23
24
25 26
29
30 31
27
2/2/2/8
12/13/14
18/20/21
24/25
22/23/30
K1
K3
K3T
300 s
2 - 3 s
5 s
F13
2
N
L
11
12 14
SE-B2
B1 B2
K4T
42
F6
P<
K2T
23
F5
P>
B2
S1
01
F3 4AF2
L1
L2
L3
N
PE
F1
Q1
1
0
H1
K1
11
K1
11
K1
11
10
5/5/5/11
13
K2
10
K3
13
K2
10
K3
13
S4
20
11
H5
K1
11
K3
13
K1
11
K1
11
K3
13
K1
11
K1
11
K2T
23
K2T
Y2
K6T
Y3
K2
L1.1
N
L1.2
F10
P
H2
N
L
11
12 14
SE-B2
B1 B2
K5T
10 s / 10 s
1
28
K1
11
K3
13
26
10
K1
11
K3
13
F13
11
1
2
3
7
8
9
M3~
K3T
14
S2
N
L
OFC
A1 M1
T11
T12
F7
M2A2
T2
K1
11
H3
Y6
CR1 CR3
K1
11
K3
13
K3
13
K3
13
CR4
Y5
CR2
K1
11
K5T
24
Y7
Y4
U
K2
10
K6T
25
F9
P
R2
2
4/4/4/18
18/20/24
10/14/19
22/30

Table of Contents

Other manuals for Bitzer OS.85 series

Related product manuals