EasyManua.ls Logo

Bitzer OS.85 series - Page 66

Bitzer OS.85 series
108 pages
Print Icon
To Next Page IconTo Next Page
To Next Page IconTo Next Page
To Previous Page IconTo Previous Page
To Previous Page IconTo Previous Page
Loading...
66 SH-510-1
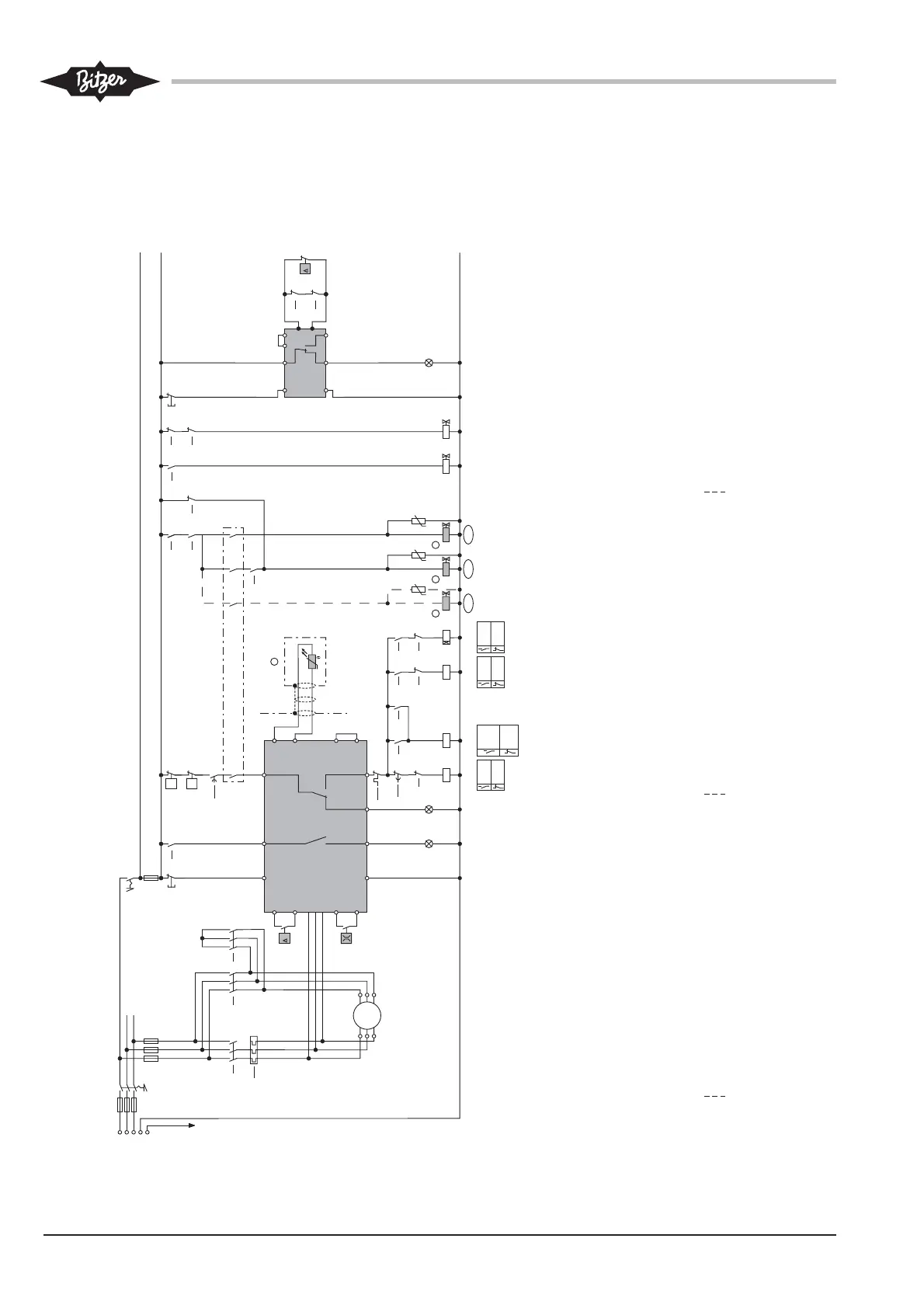
Stufenlose Leistungsregelung
optionale Ausführung mit SE-C2
Infinite capacity control
optionai version with SE-C2
Régulation de puissance en continu
version optionale avec SE-C2
Temps d'impulsion environ 0,5 s .. max. 1 s,
dépendant de la caractèristique de l'installa-
tion, voir aussi chapitre 2.6
Armoire électrique
Les options sont signalées par des lignes
hachurées.
Fonctionnement ECO (option), contrôle de
niveau d’huile et des chauffage voir page 68.
Légende voir pages 60 et 61.
Pulsing time approx. 0.5 s .. max. 1 s,
depending on system characteristic,
see also chapter 2.6
Switch board
Options are indicated by dashed lines.
ECO operation (option), oil level switch
and heater see page 68.
For legend refer to pages 60 and 61.
Impulszeit ca. 0,5 s .. max. 1 s,
abhängig von Anlagen-Charakteristik,
siehe auch Kapitel 2.6
Schaltschrank
Optionen sind mit gestrichelten Linien
dargestellt.
ECO-Betrieb (Option), Ölniveau-Über-
wachung und Heizung siehe Seite 68.
Legende siehe Seiten 60 und 61.
K1
11
K1
11
K2
10
K3
13
B2
4321 876
5
13
1211
109
14
15
16
17
18 19 20
21 22
23
24
25
2/2/2/8
12/13/14
17/19
201/24
K1
K3
K3T
2 - 3 s
K4T
42
F6
P<
F5
P>
S1
01
F3 4AF2
L1
L2
L3
N
PE
F1
Q1
1
0
H2
10
5/5/5/11
13
S4
H5
K1
11
K3
13
K1
11
K1
11
K3
13
Y2 Y3
K2
L1.1
N
L1.2
F10
P
N
L
11
12 14
SE-B2
B1 B2
K1
11
K3
13
1
2
3
7
8
9
M3~
Y5
Y6
Y7
CR2 CR3 CR4
1 11
Limit
CR 50%
Limit
CR 25%
K1
11
K3
13
UU U
K3
13
K3
13
S2
K1
11
F13
2
P
K1
11
K2
10
K3
13
K3T
14
F13
10
K2
10
Option
R2
2
4/4/4/16
17
10/14/18
20/24
schwarz/black/noir
braun/brown/marron
blau/blue/bleu
F7
L2
L3
3
4
L
12 14
SE-C2
6
24
1121
1
2
5
7
8
N
L1
F9
H1

Table of Contents

Other manuals for Bitzer OS.85 series

Related product manuals